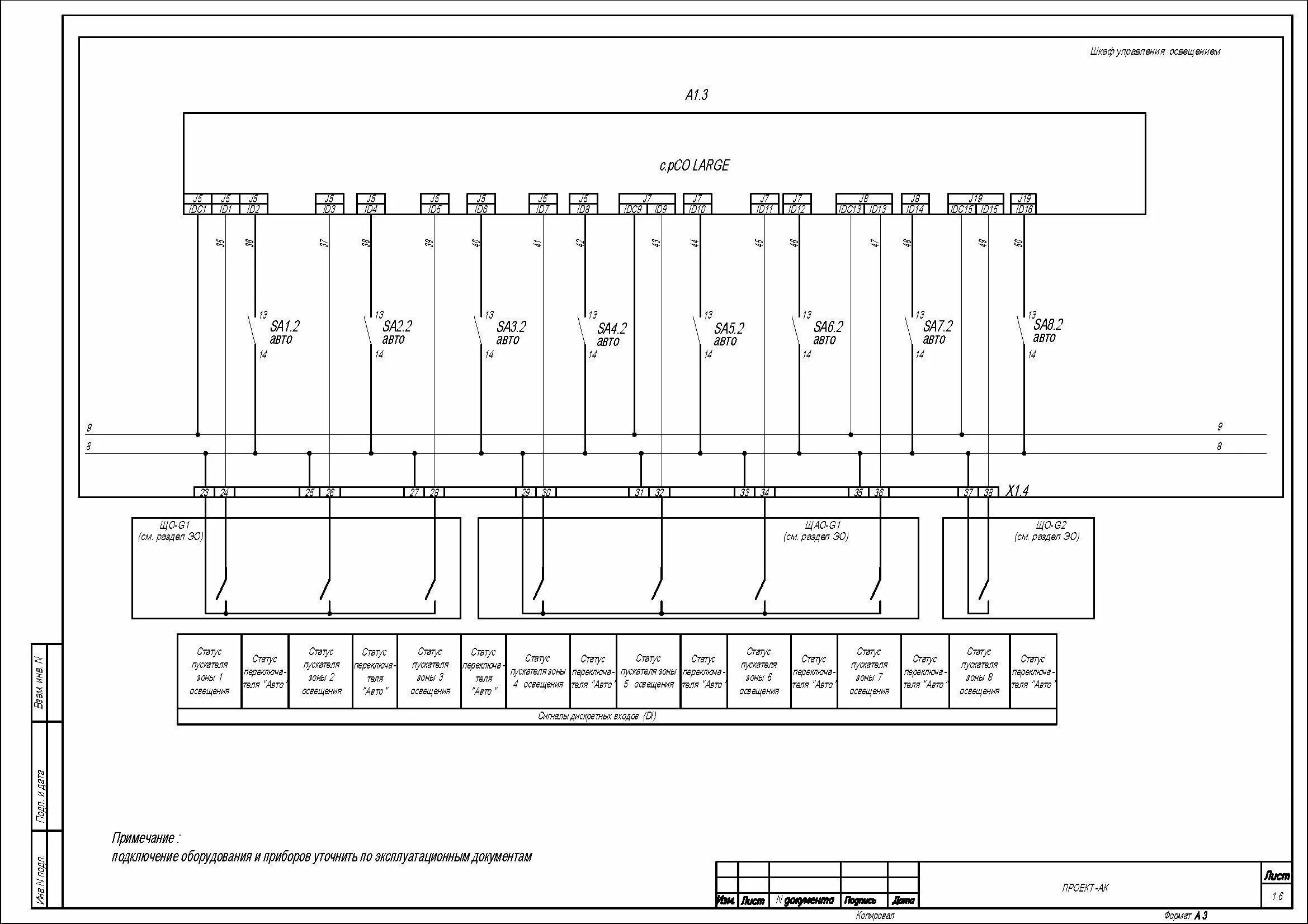
Схема устройства освещения