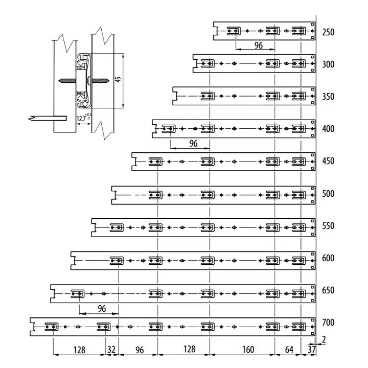
Схема установки шариковых направляющих для ящиков