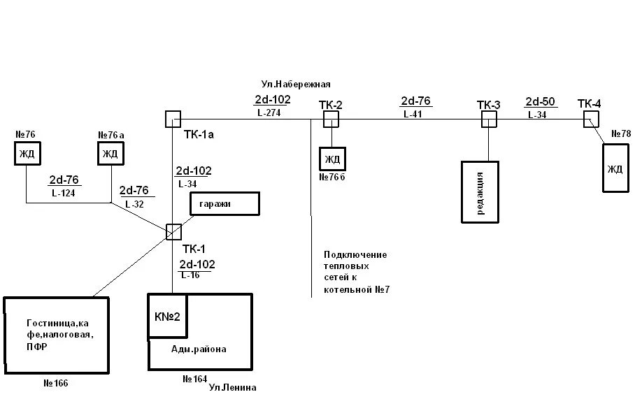
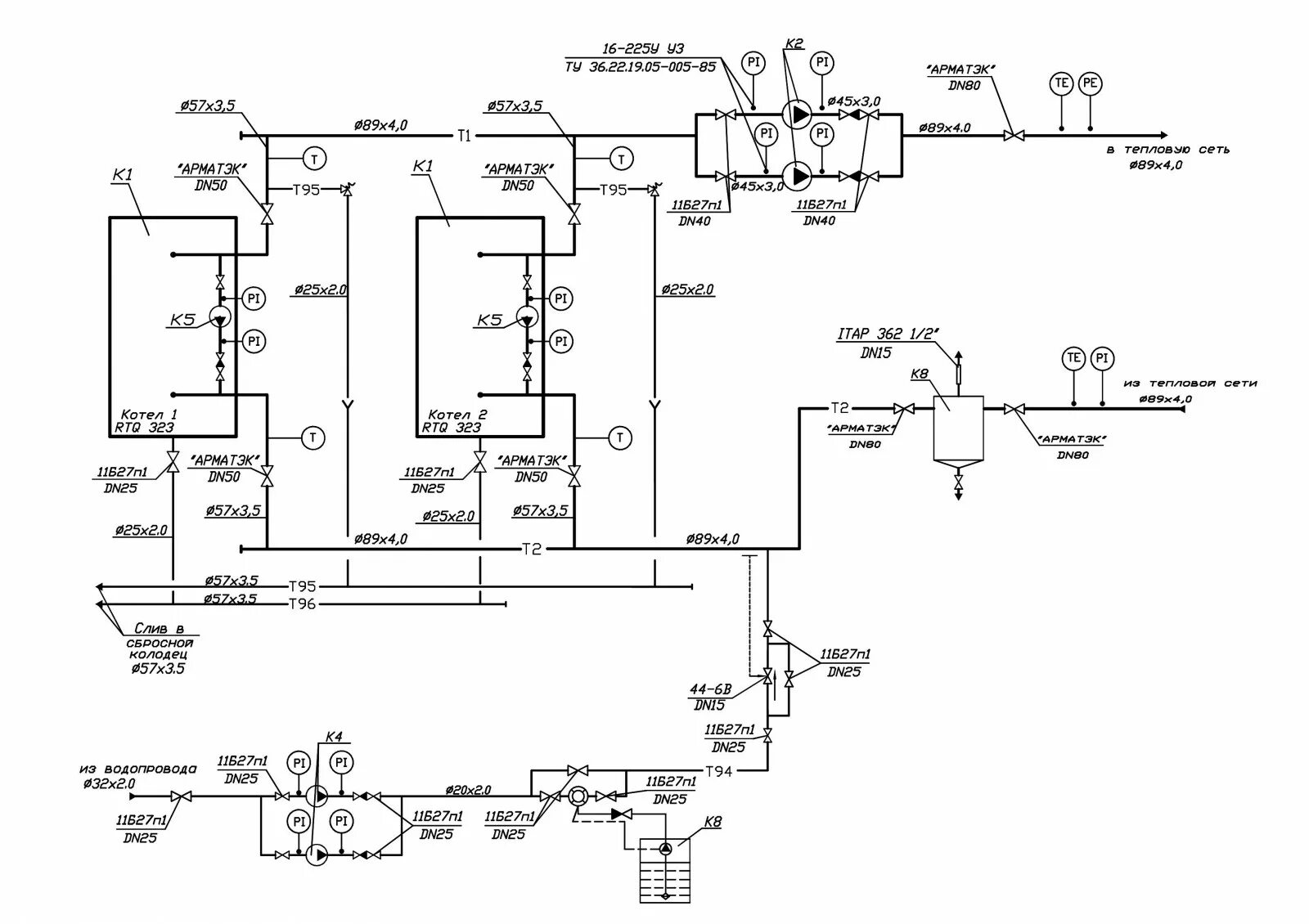
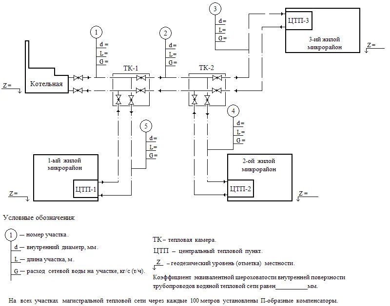
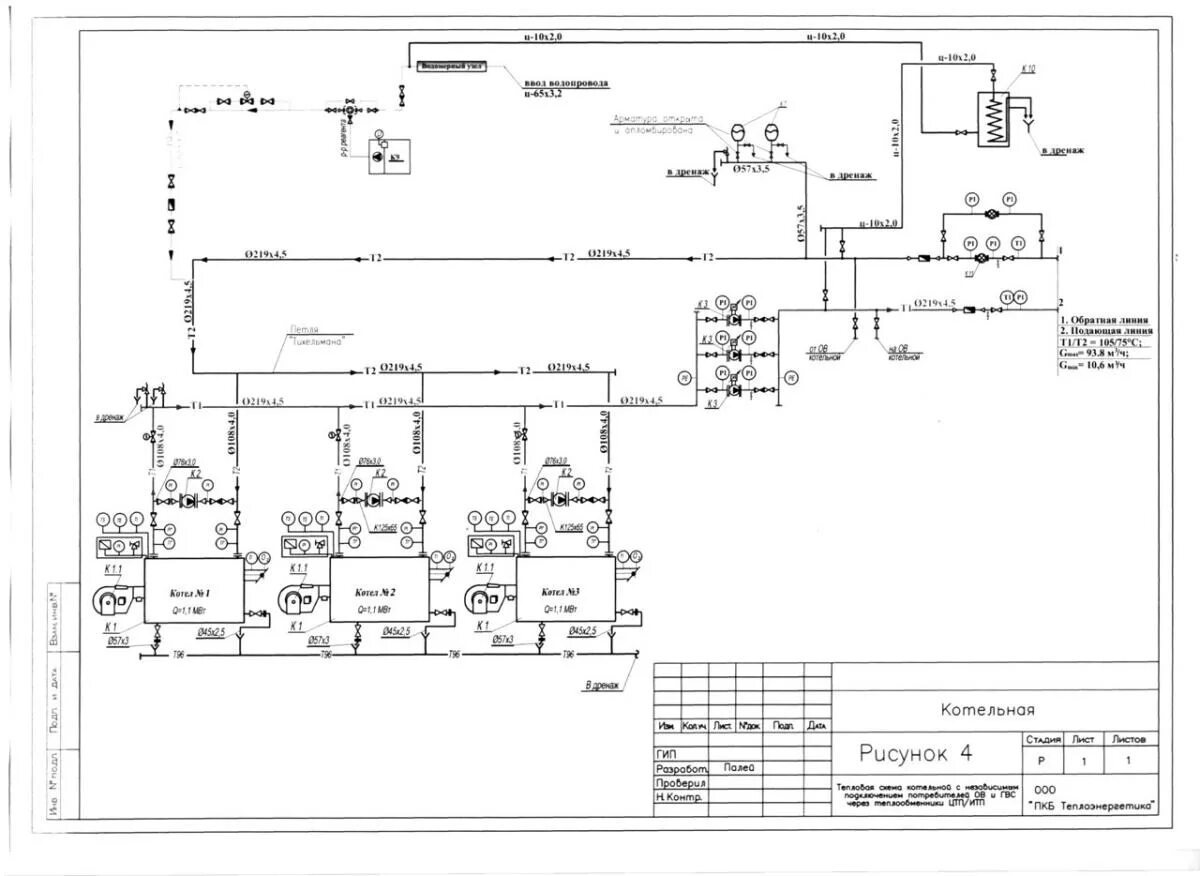
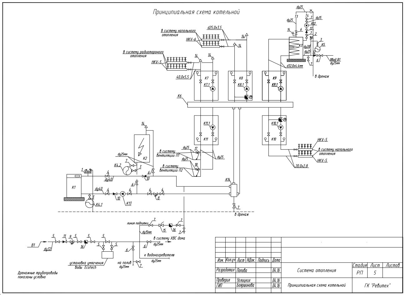
Схема тепловых сетей котельной