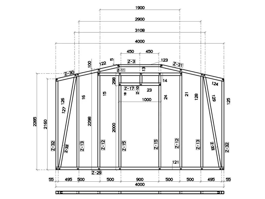
Схема теплицы из профильной трубы своими руками