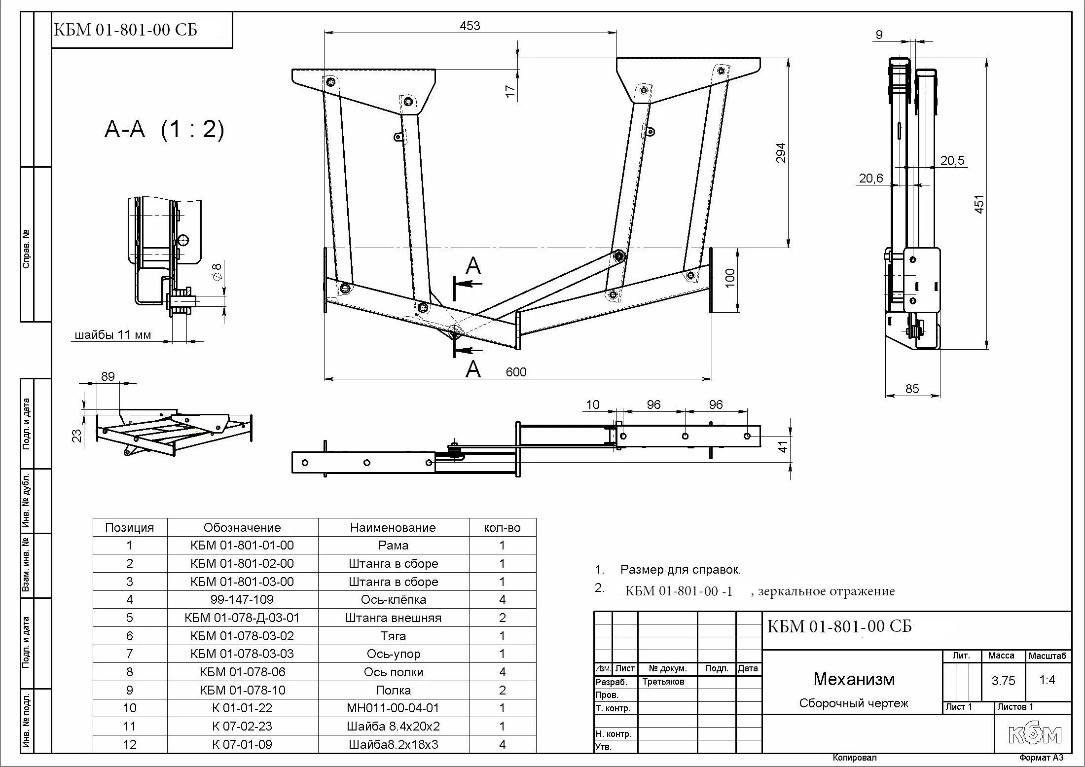
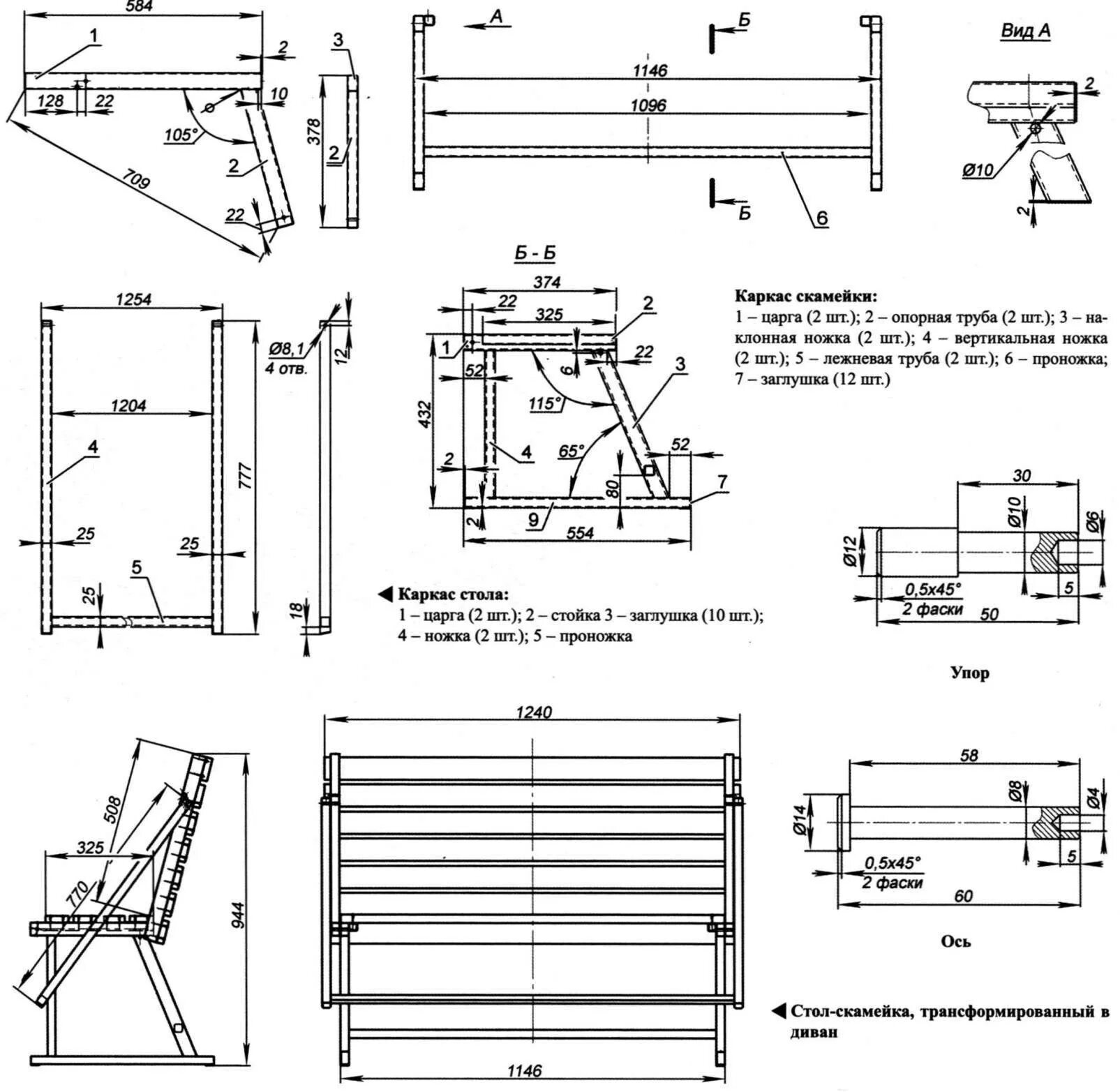
Схема стол трансформер