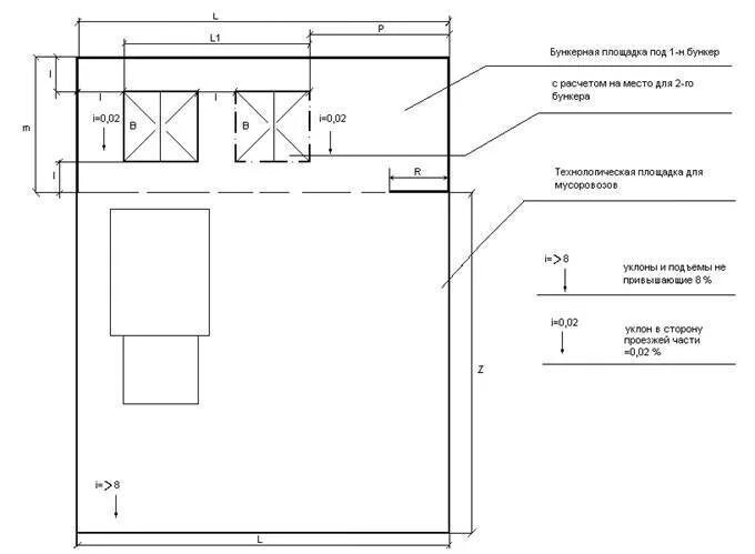
Схема размещения мест площадок отходов