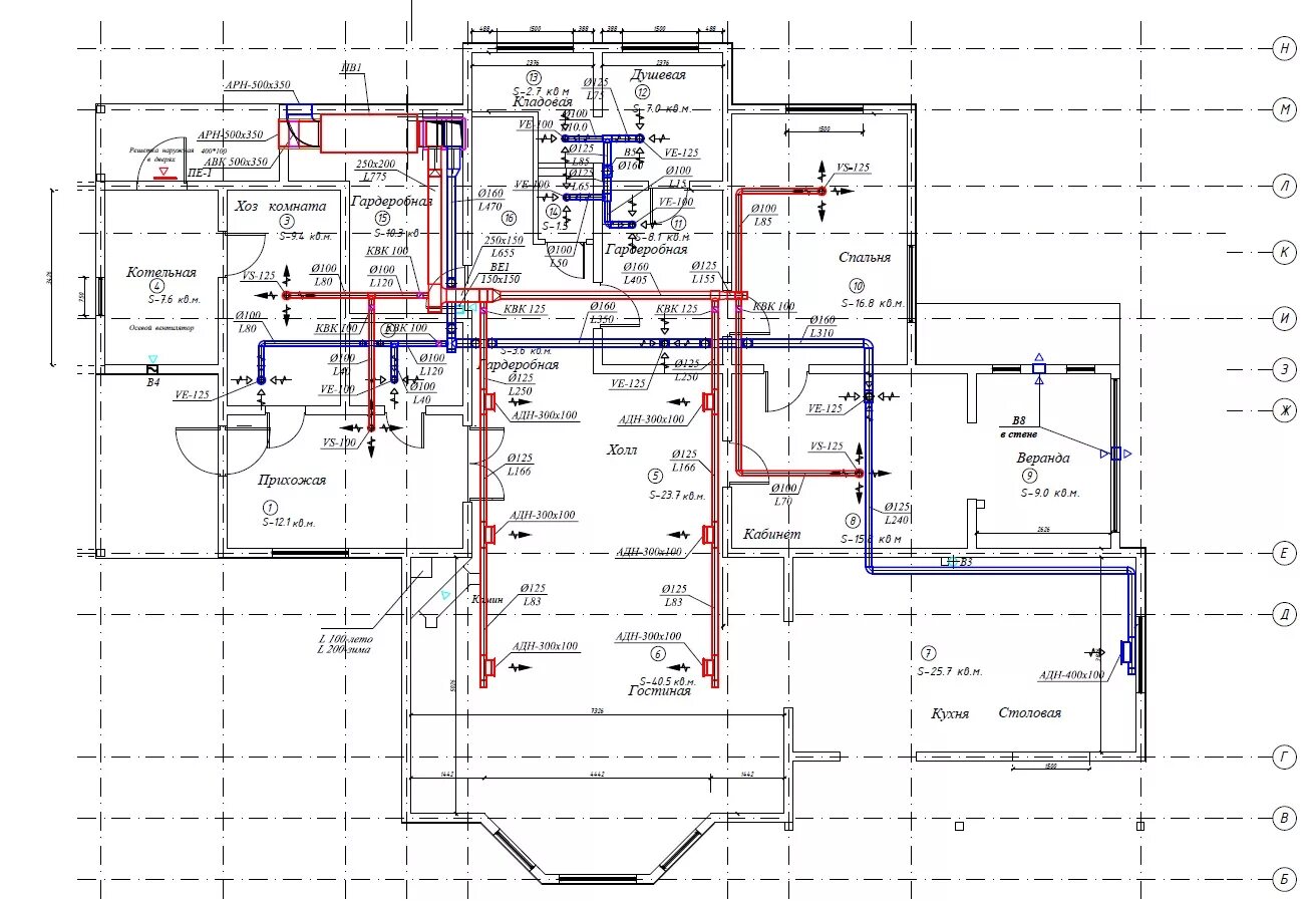
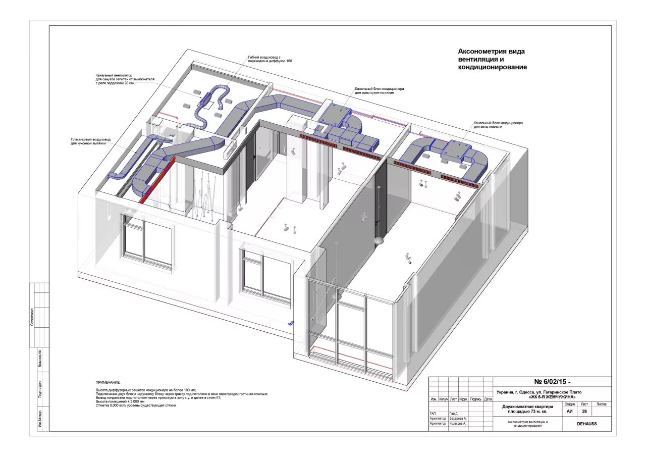
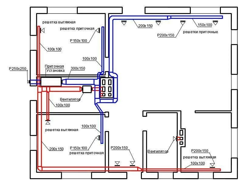
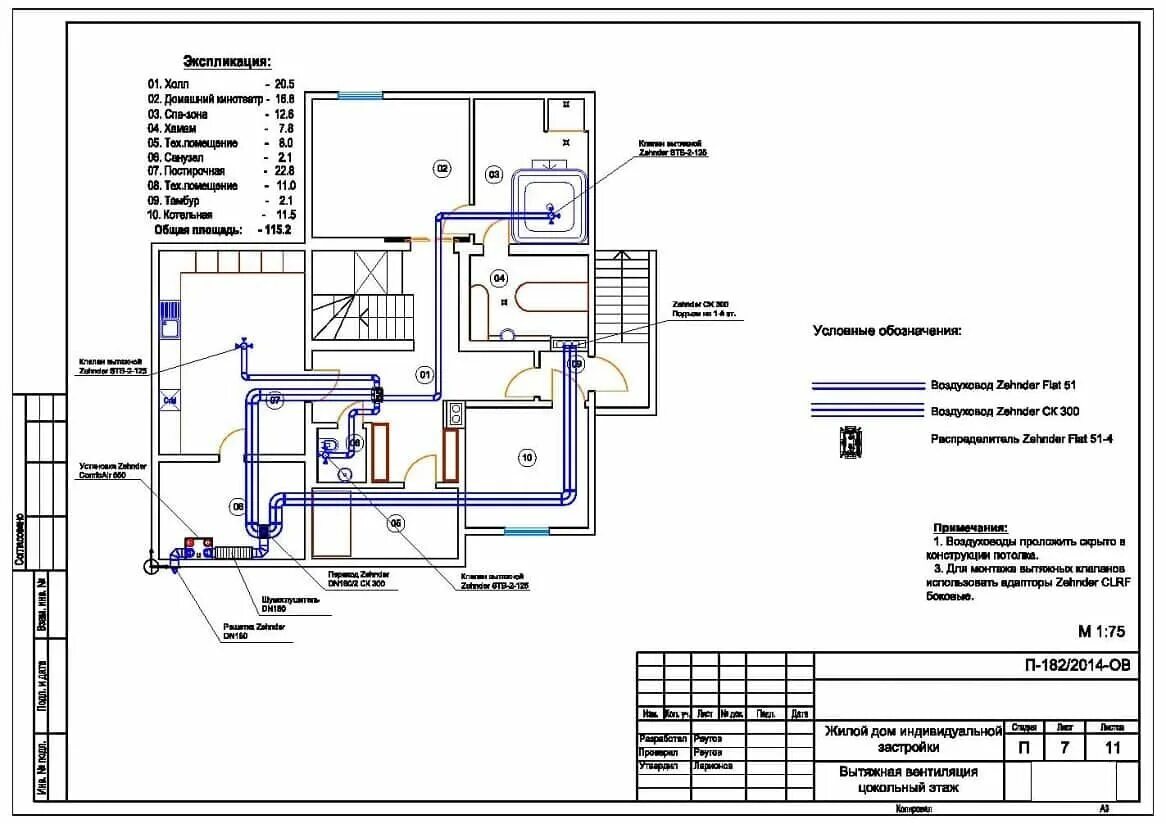
Схема расположения вентиляции