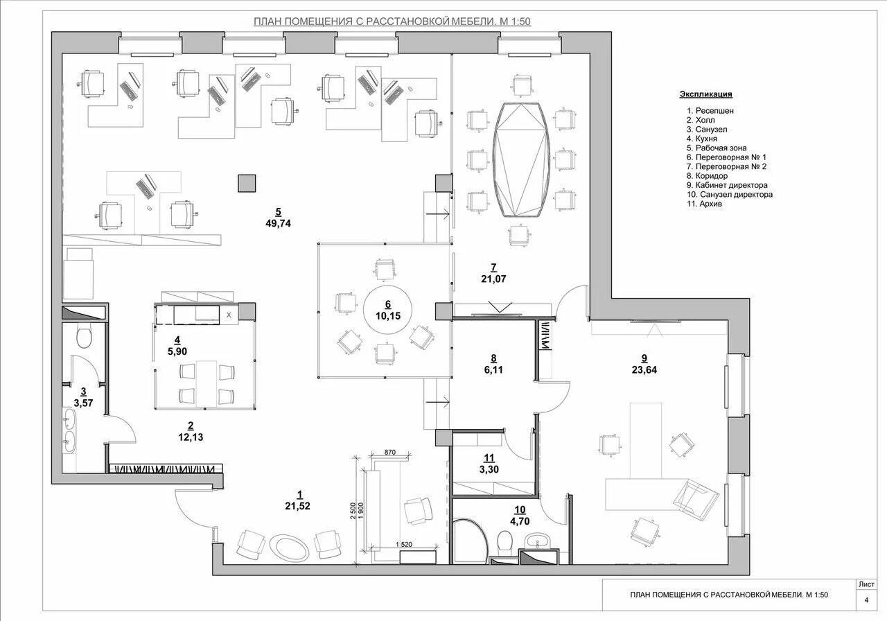
Схема расположения помещения