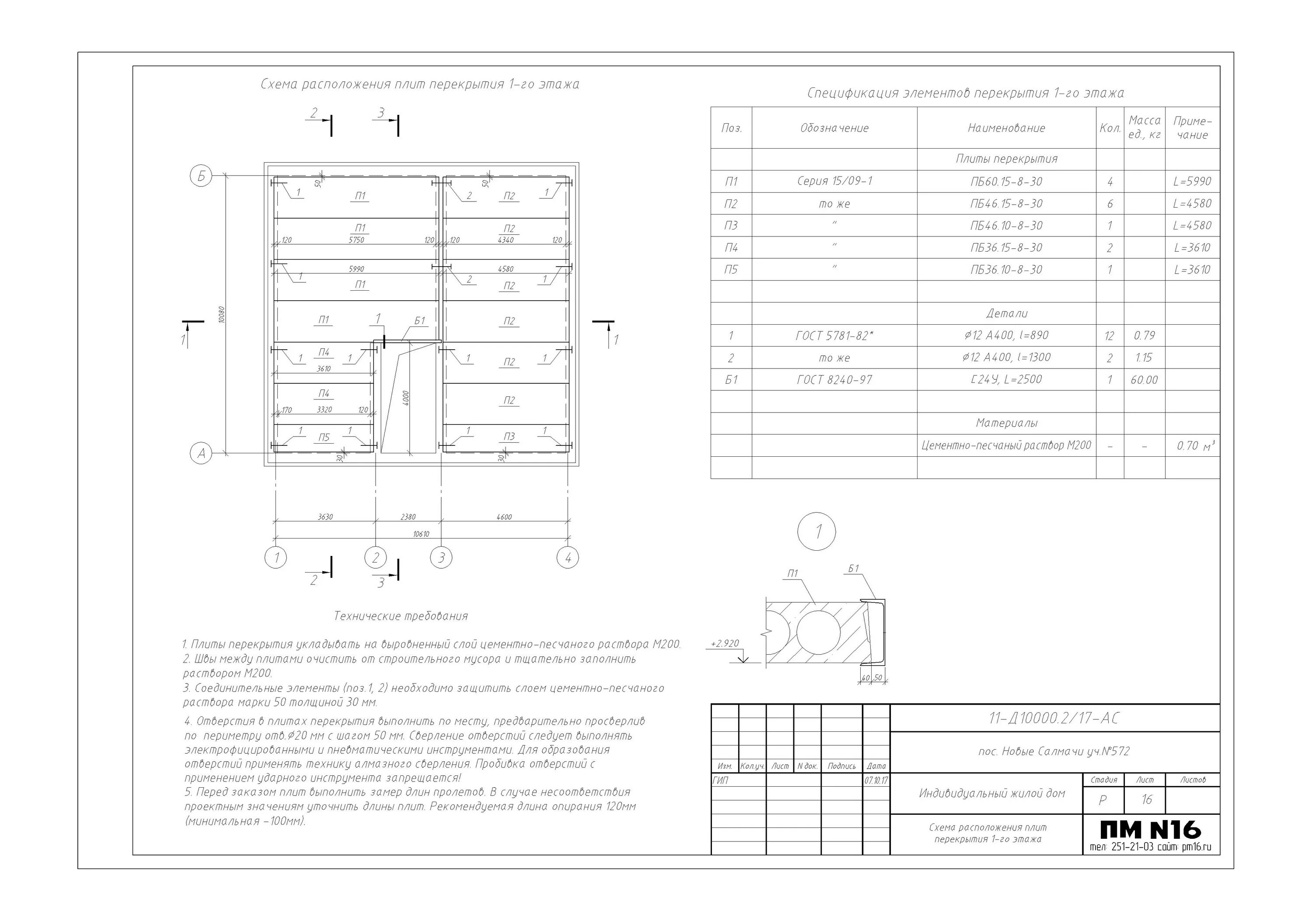
Схема расположения плит перекрытия