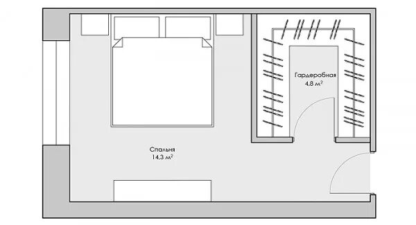
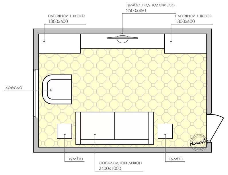
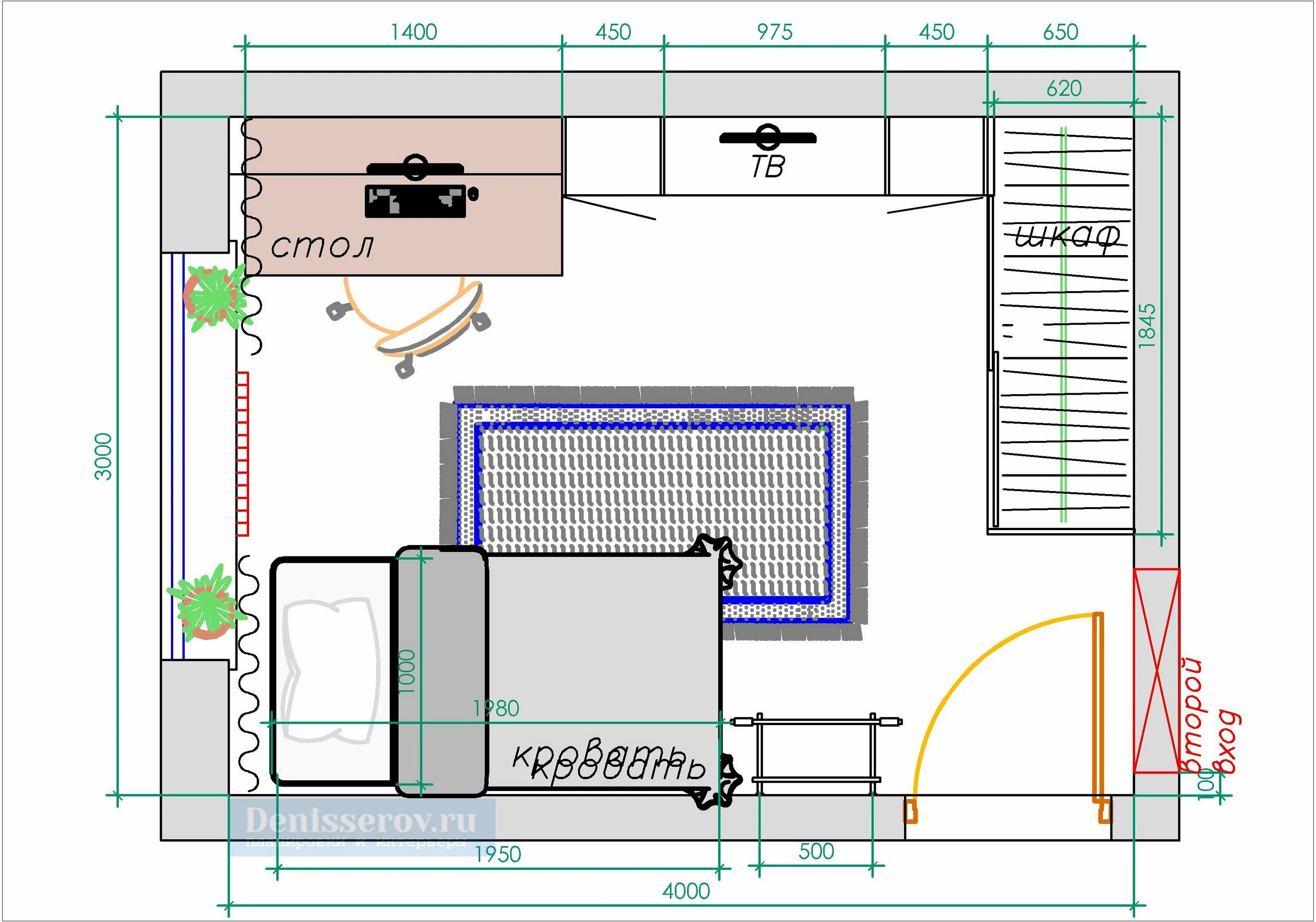
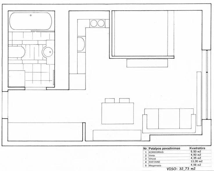
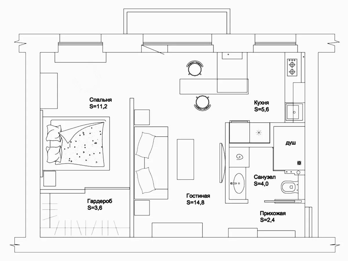
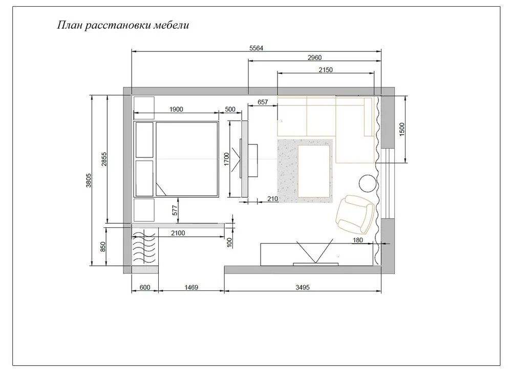
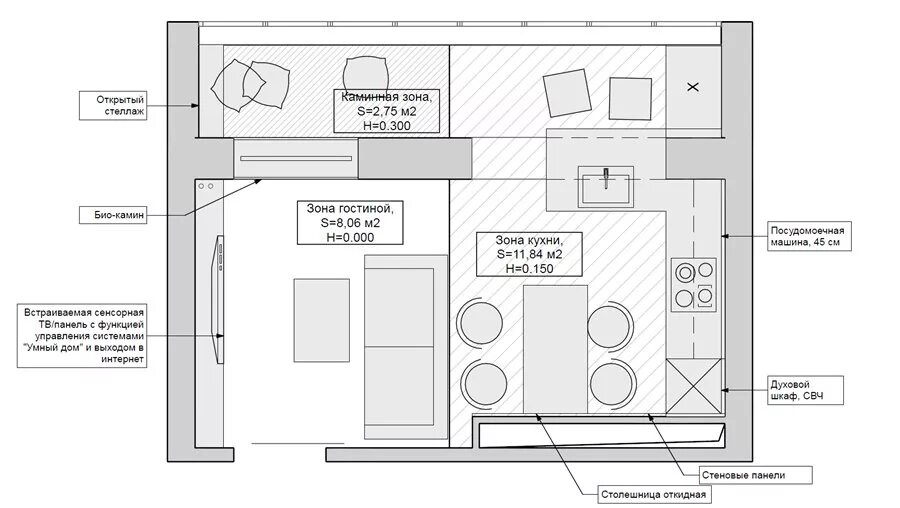
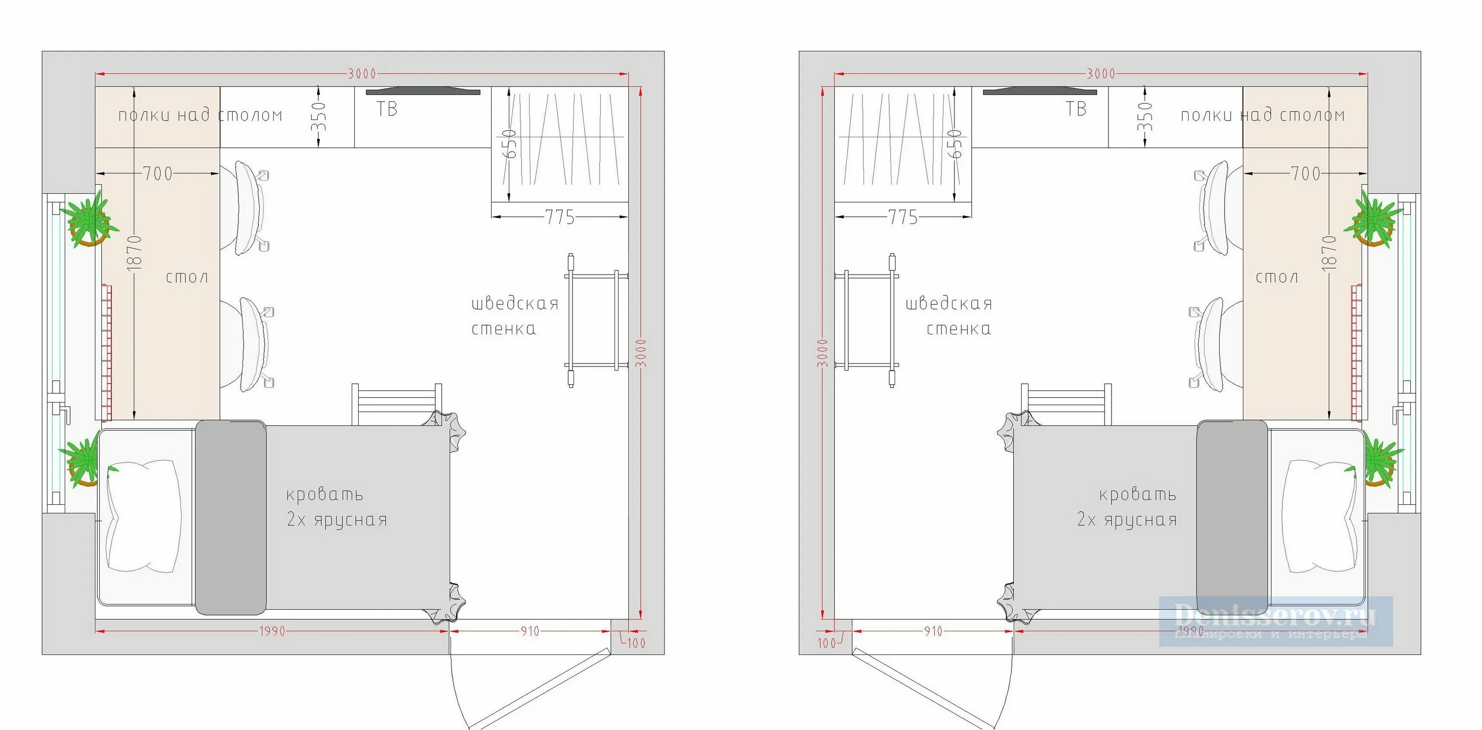
Схема прямоугольной комнаты