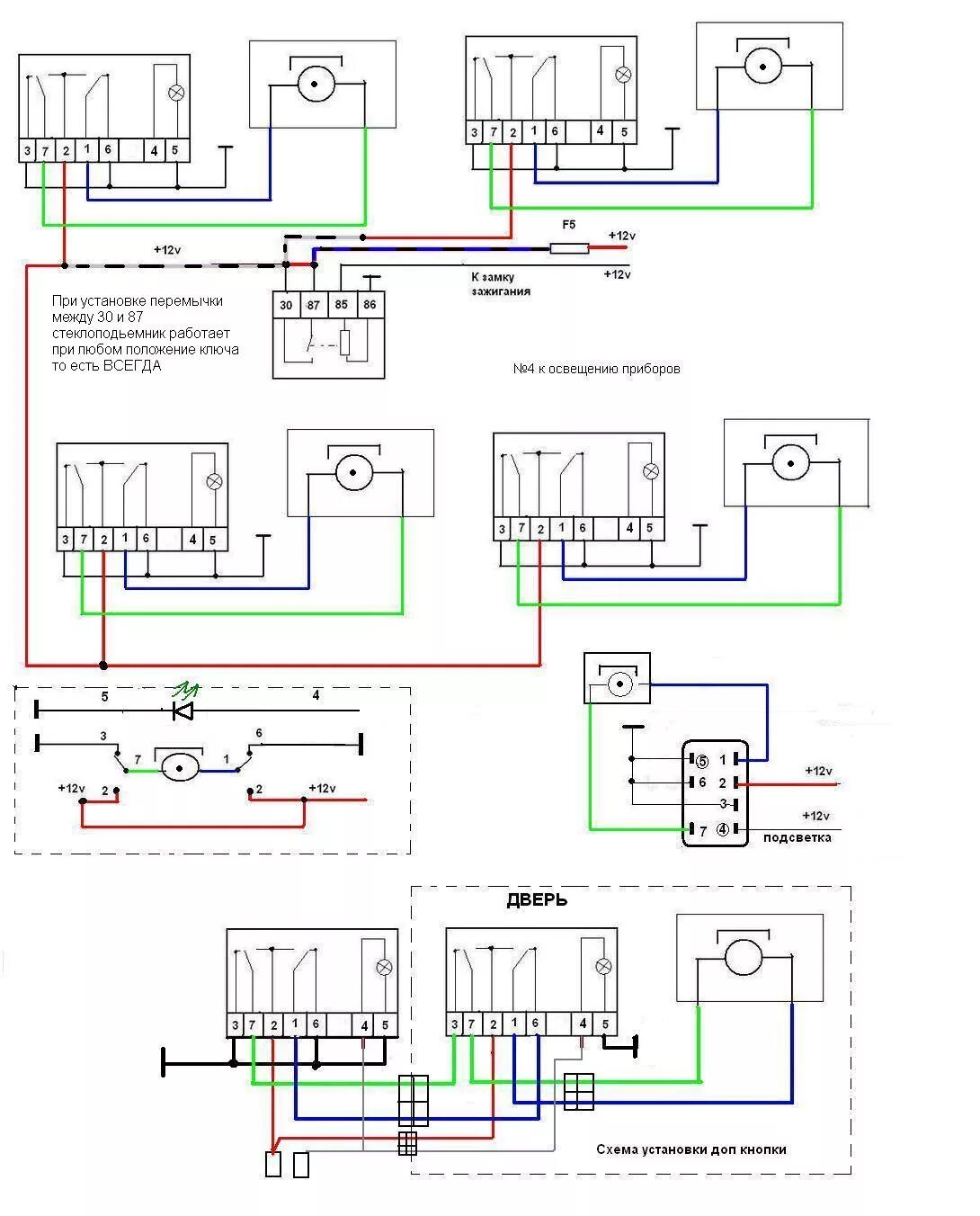
Схема подключения стеклоподъемников приора