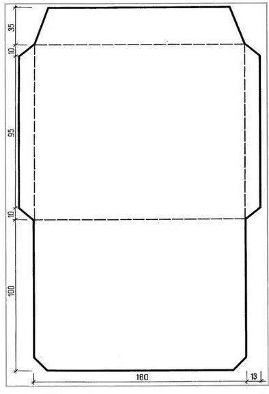
Схема конверта из а4