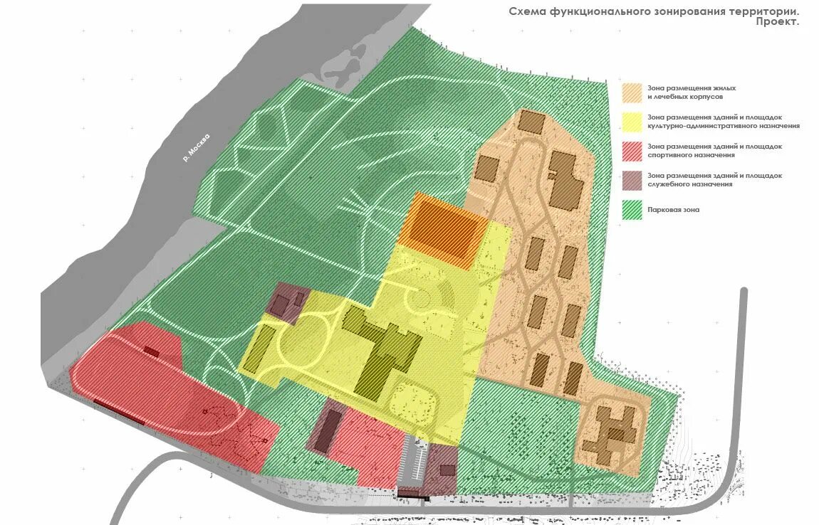
Схема функционального зонирования территории