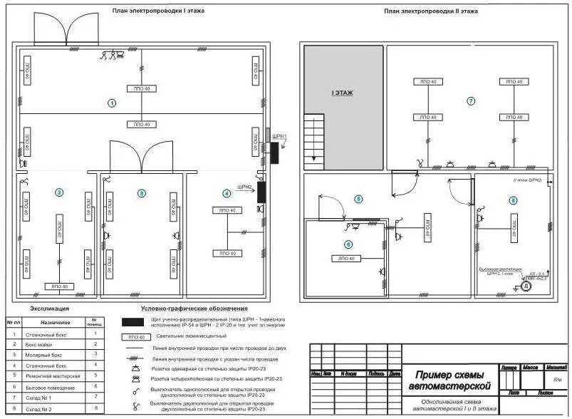
Схема электропроводки пример