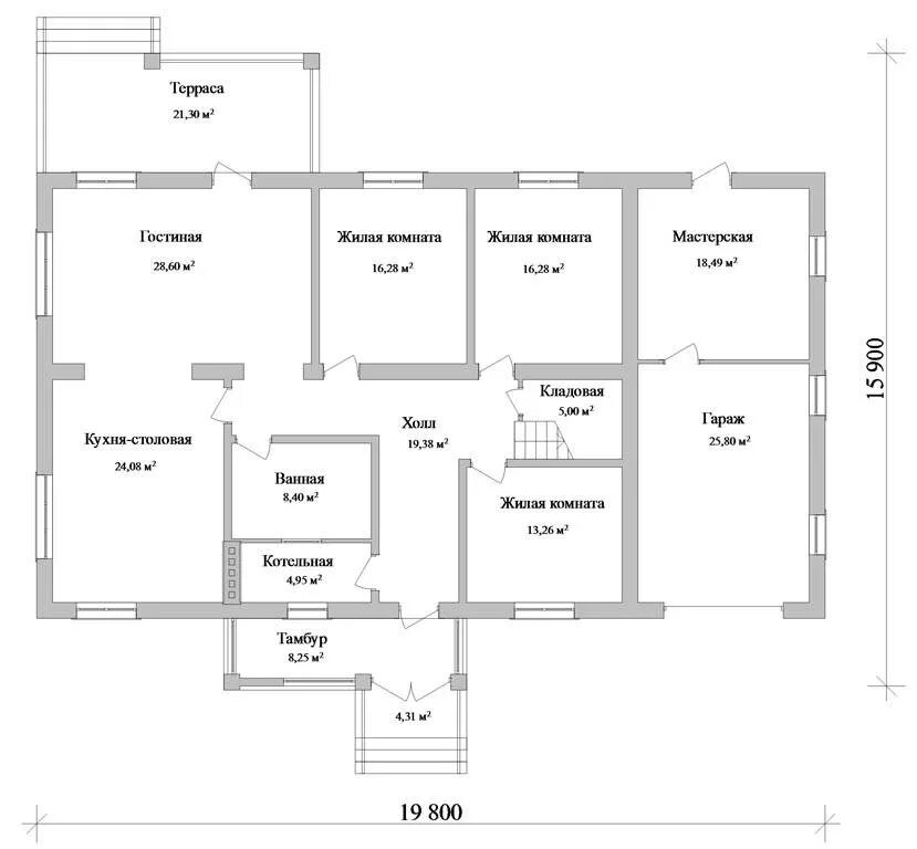
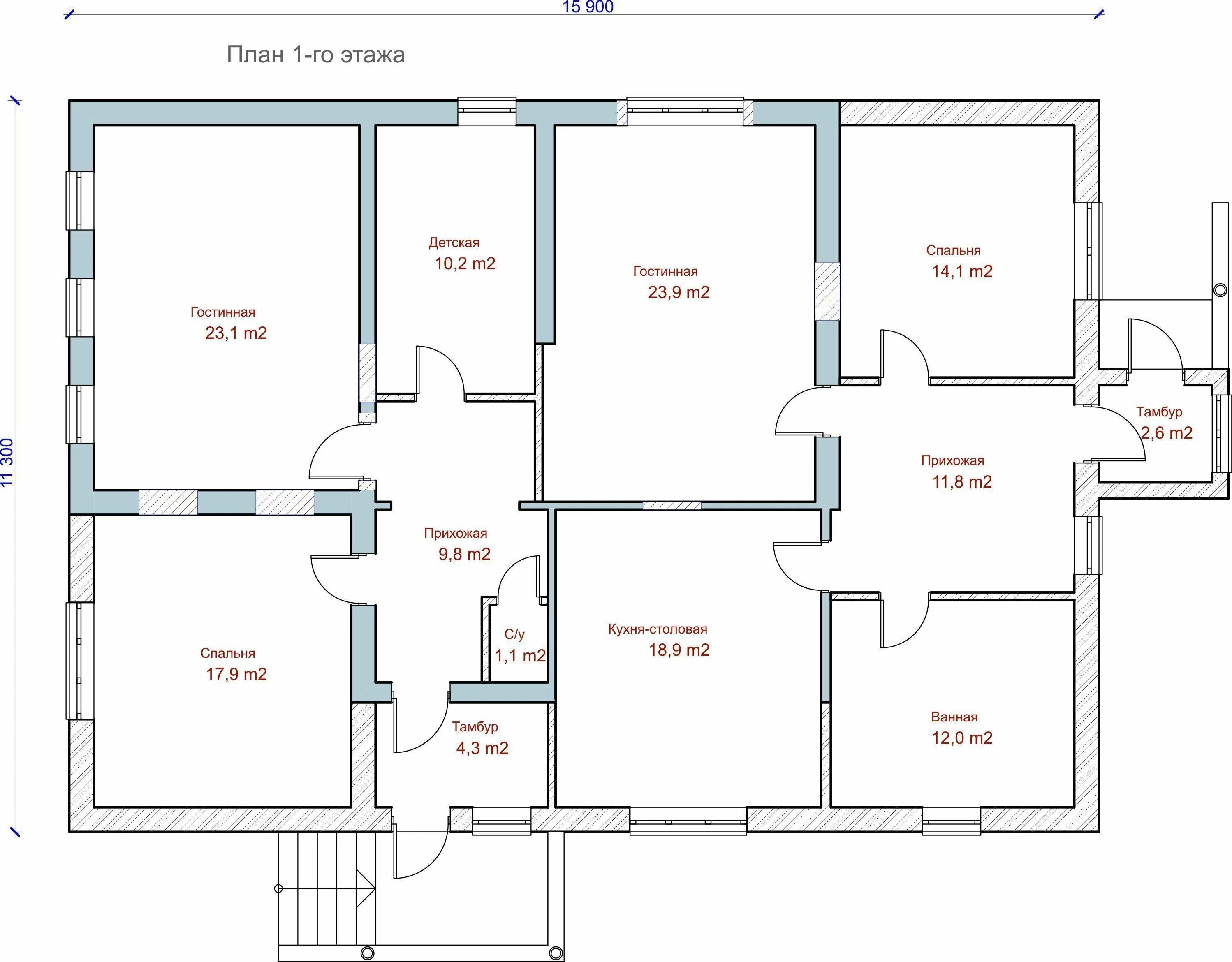
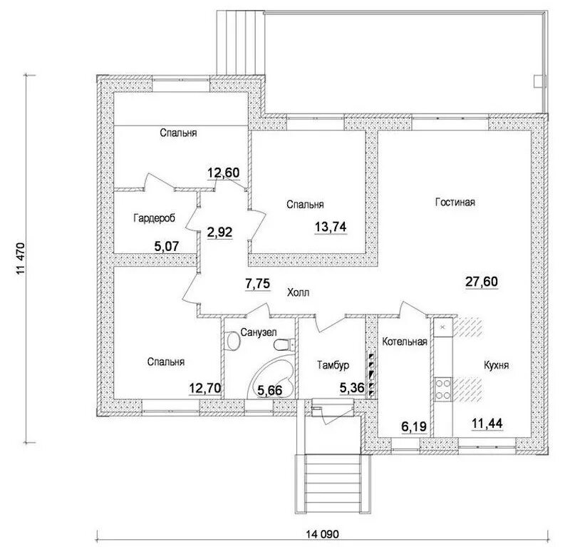
Схема дом 3 комната