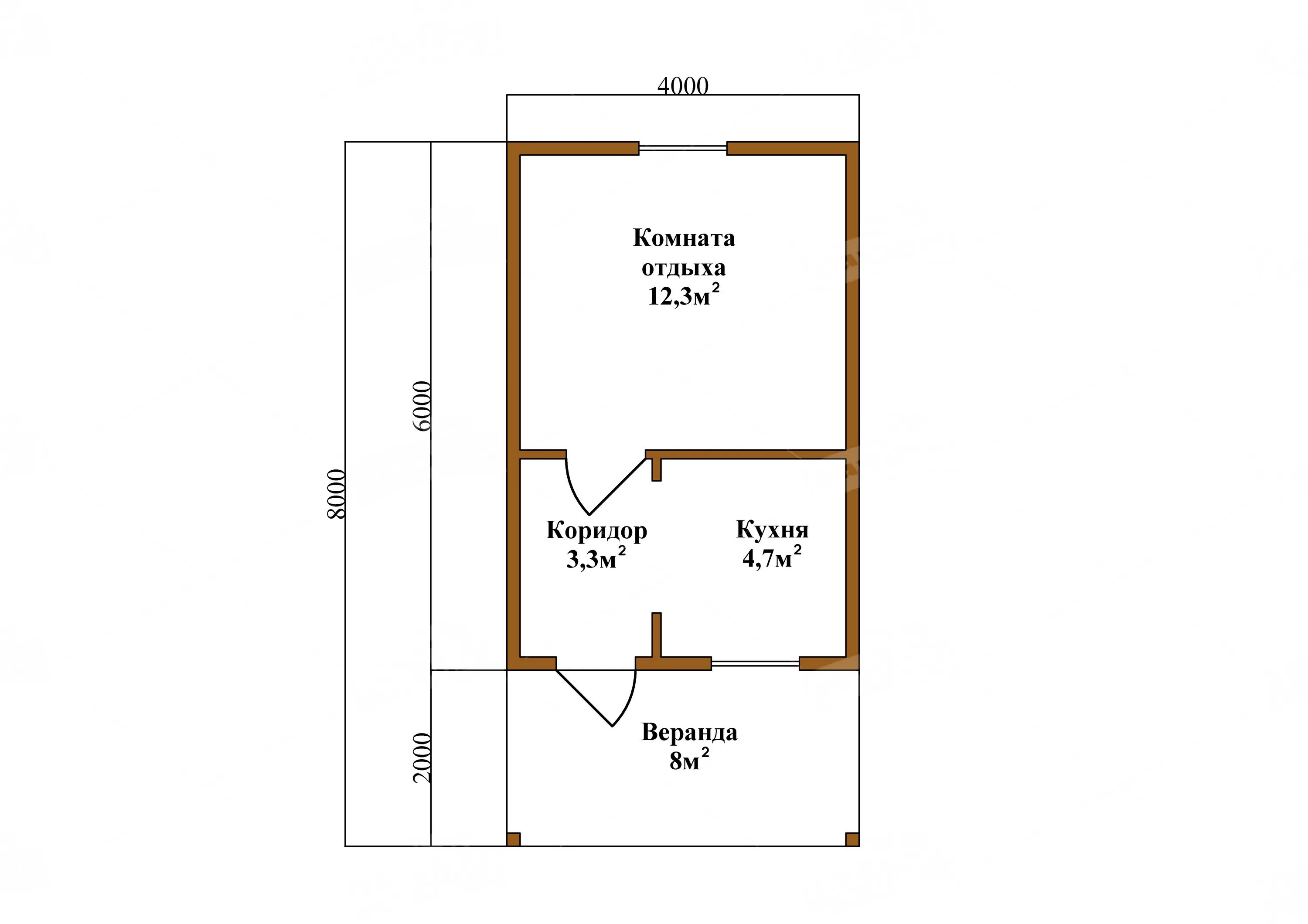
Схема дачного дома