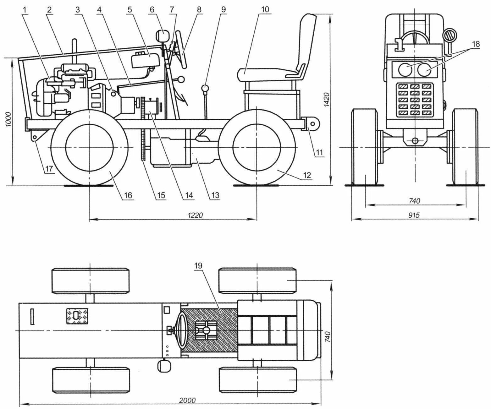
Схема чертежи минитрактора