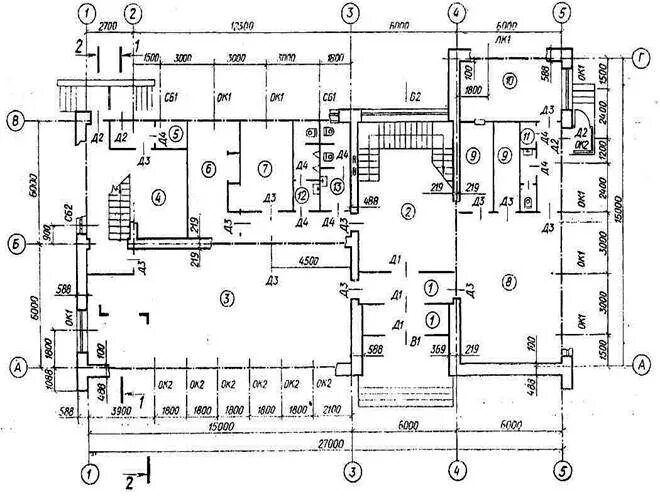
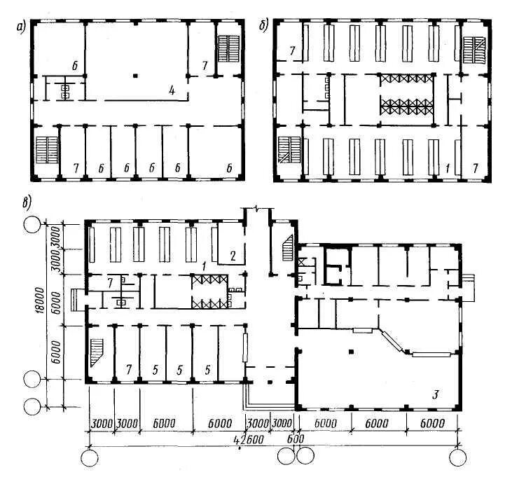
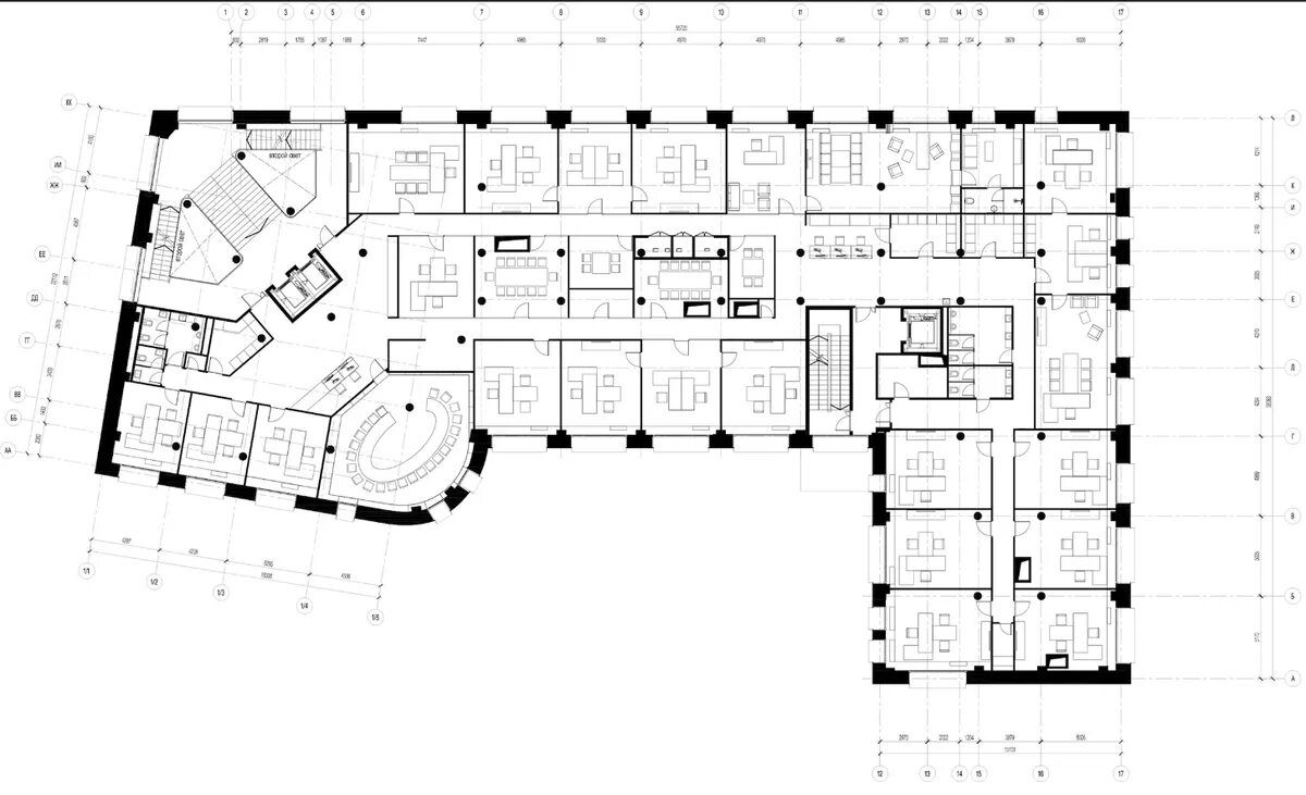
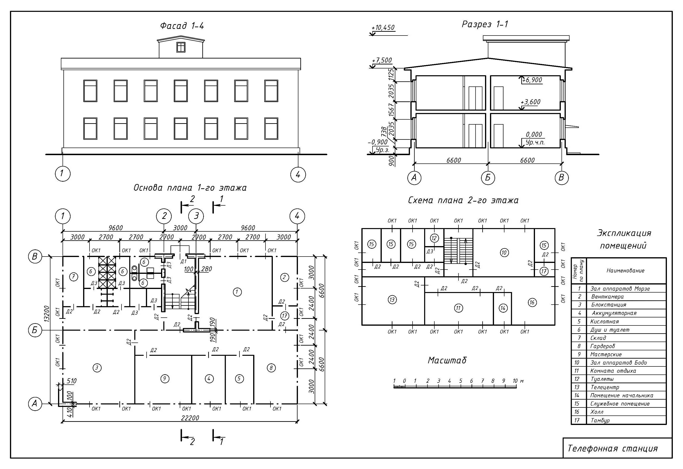
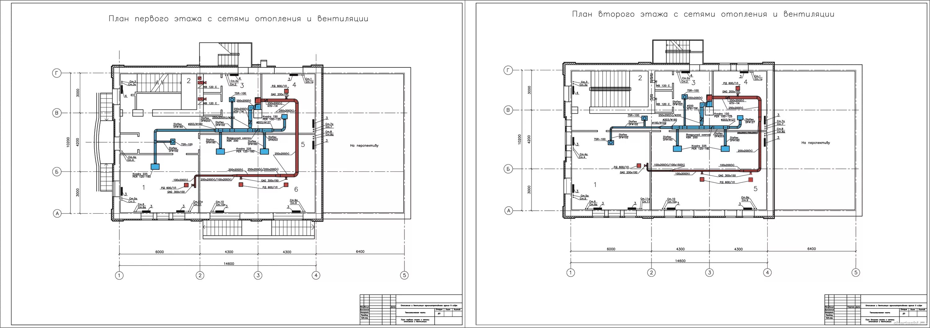
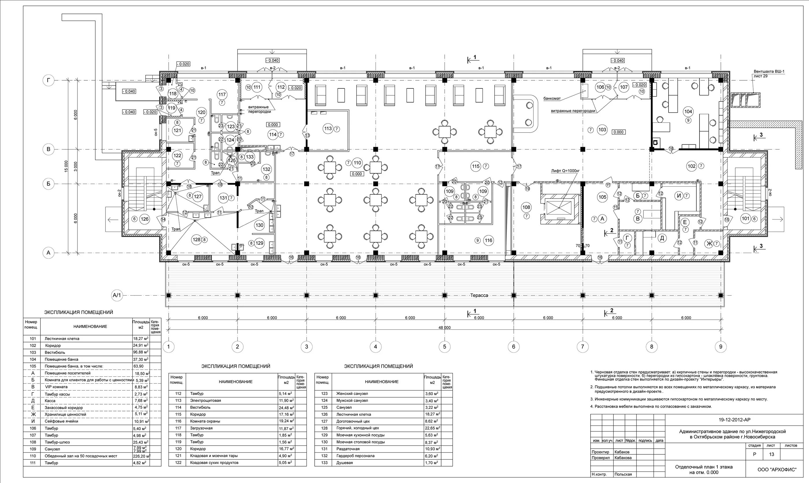
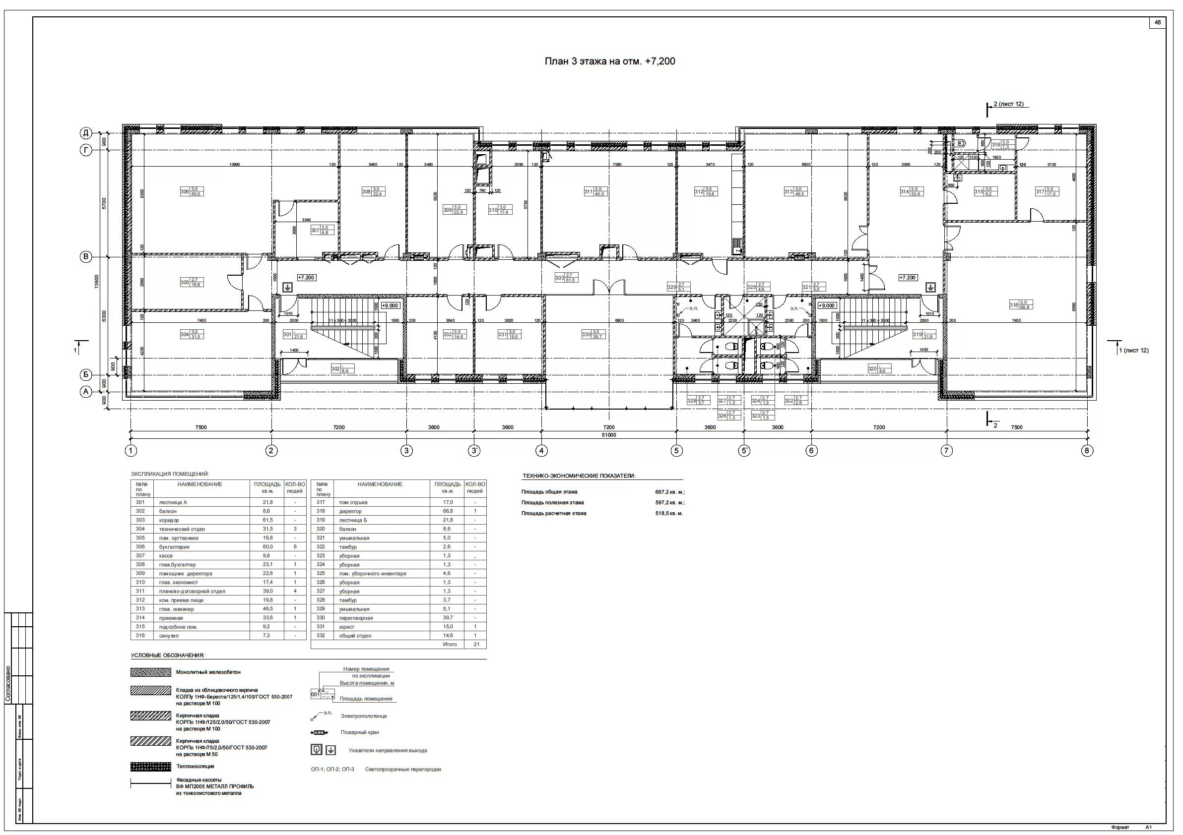
Схема административного здания