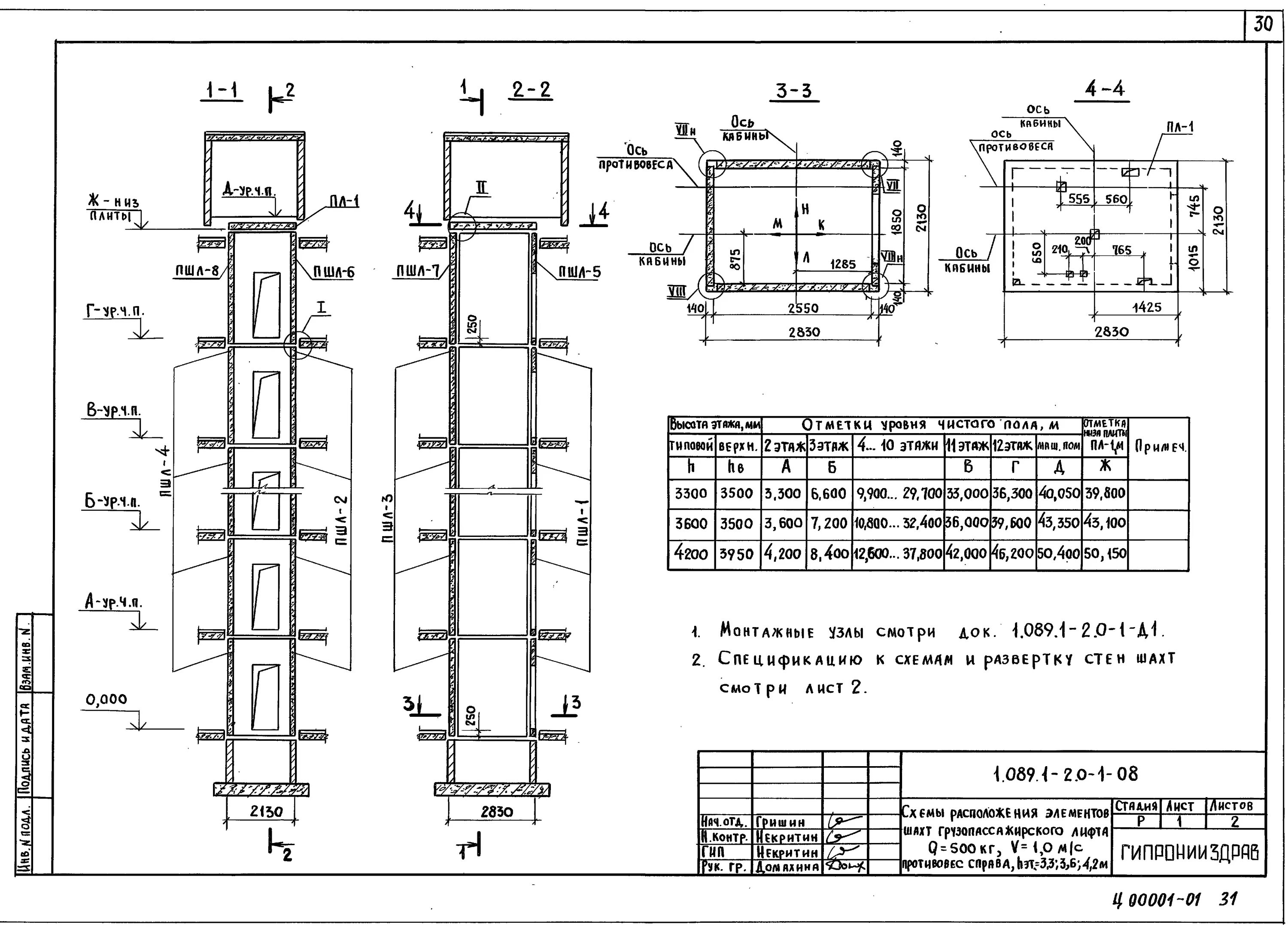
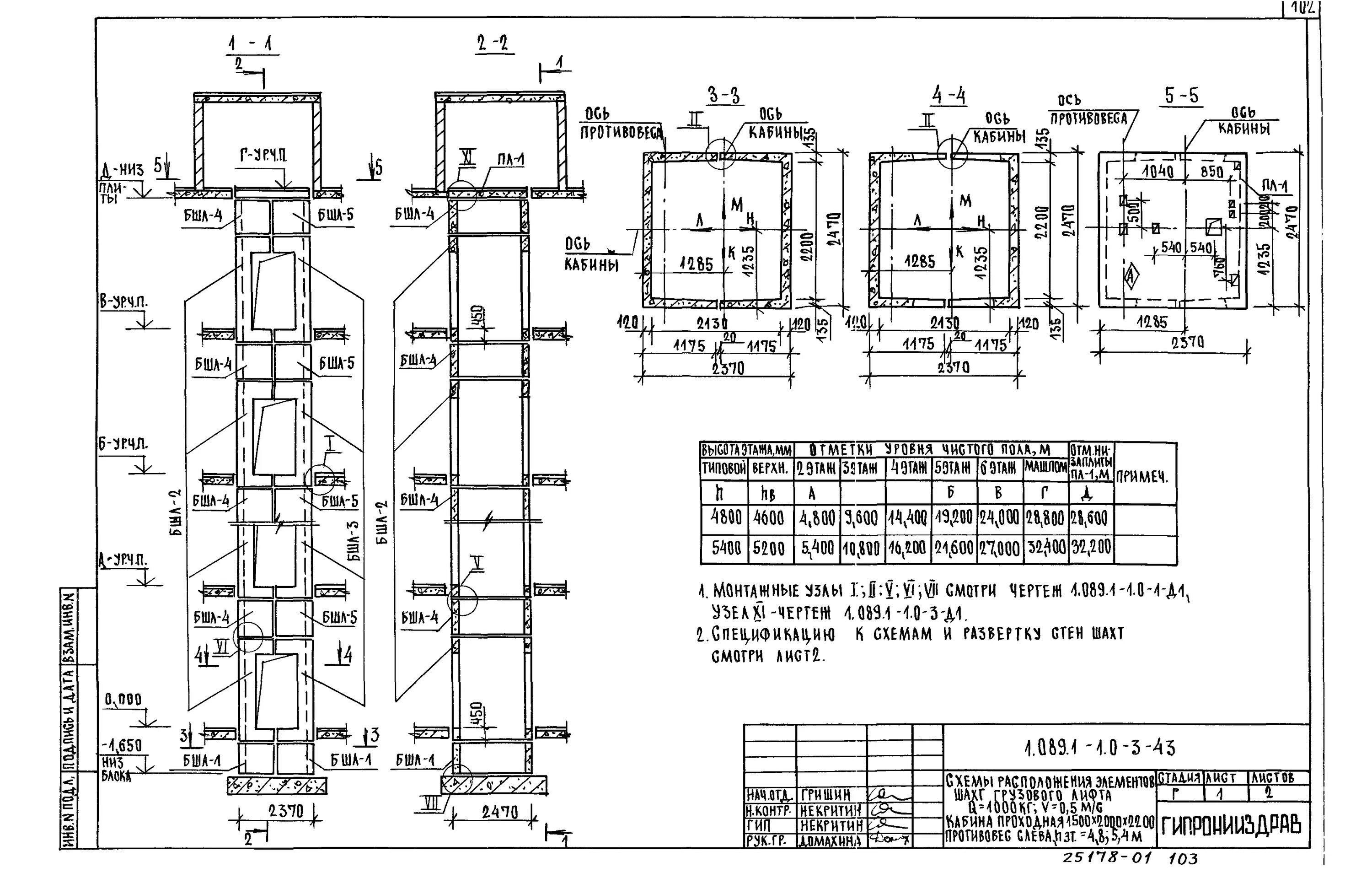
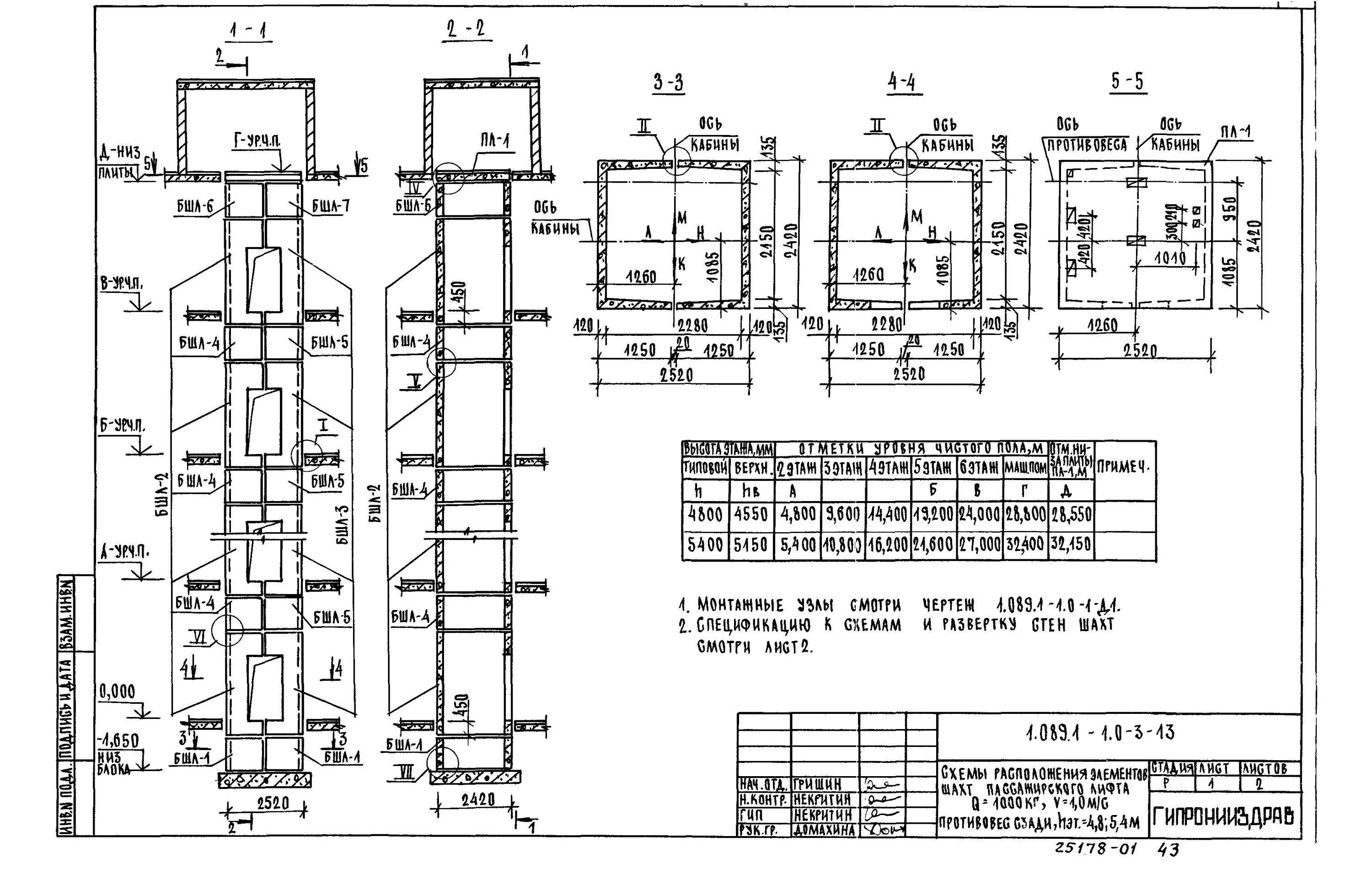
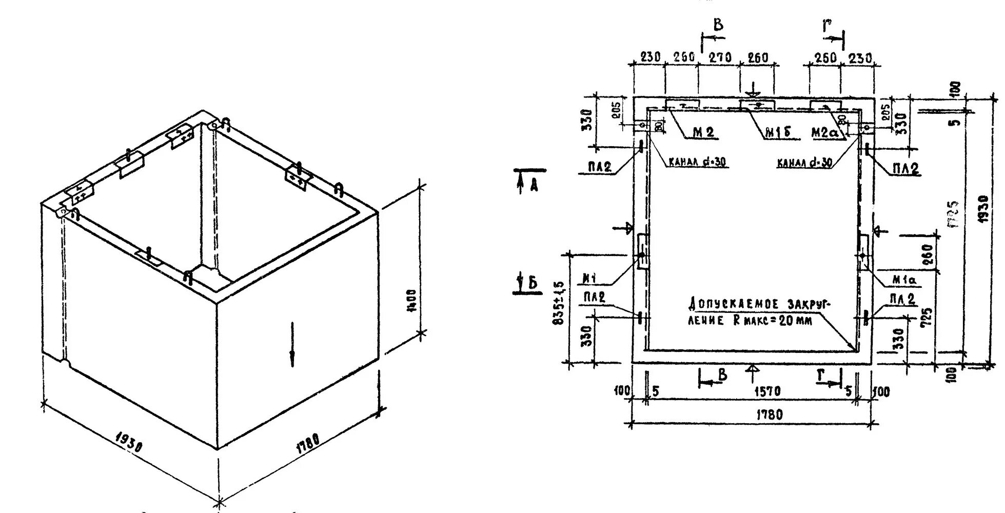
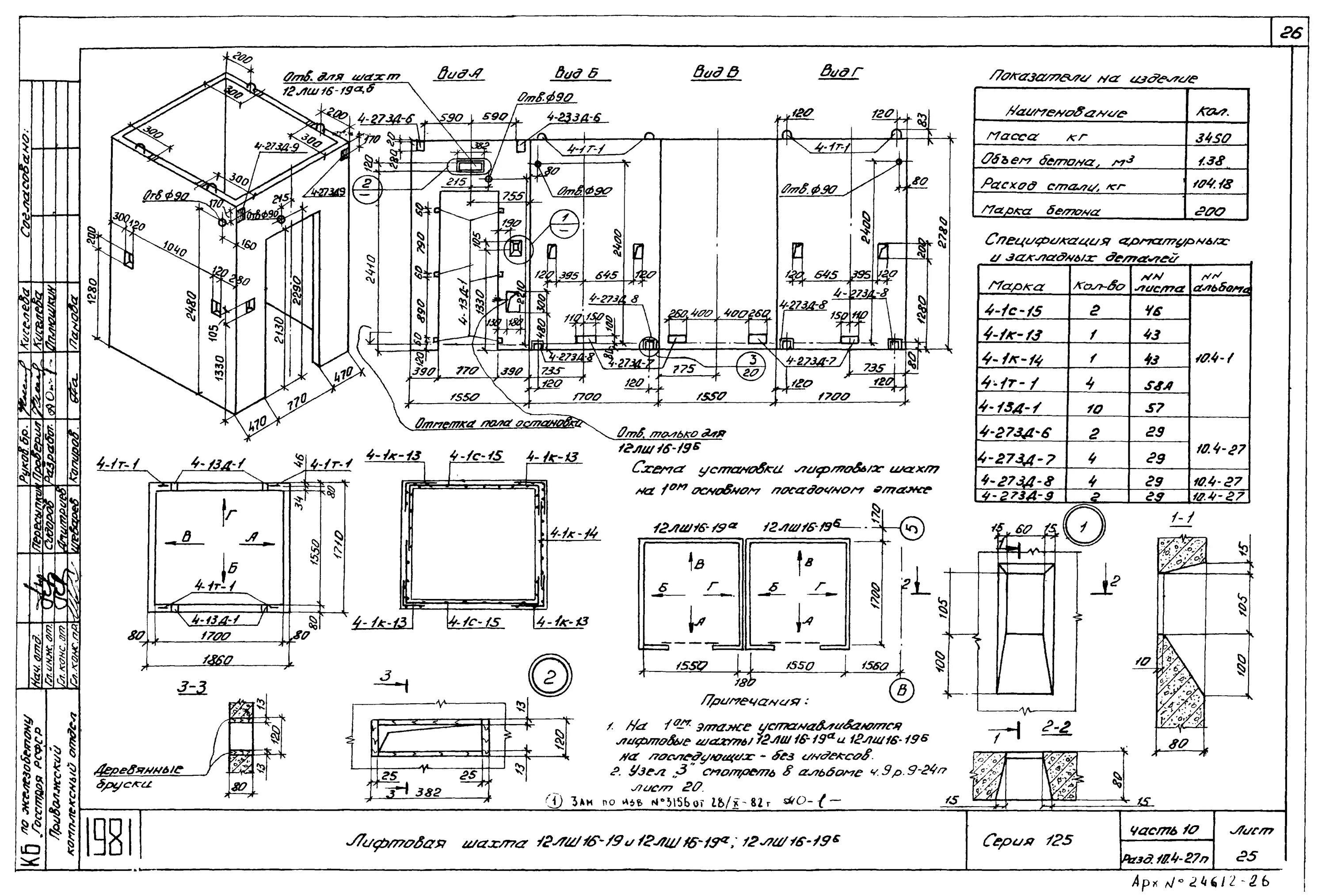
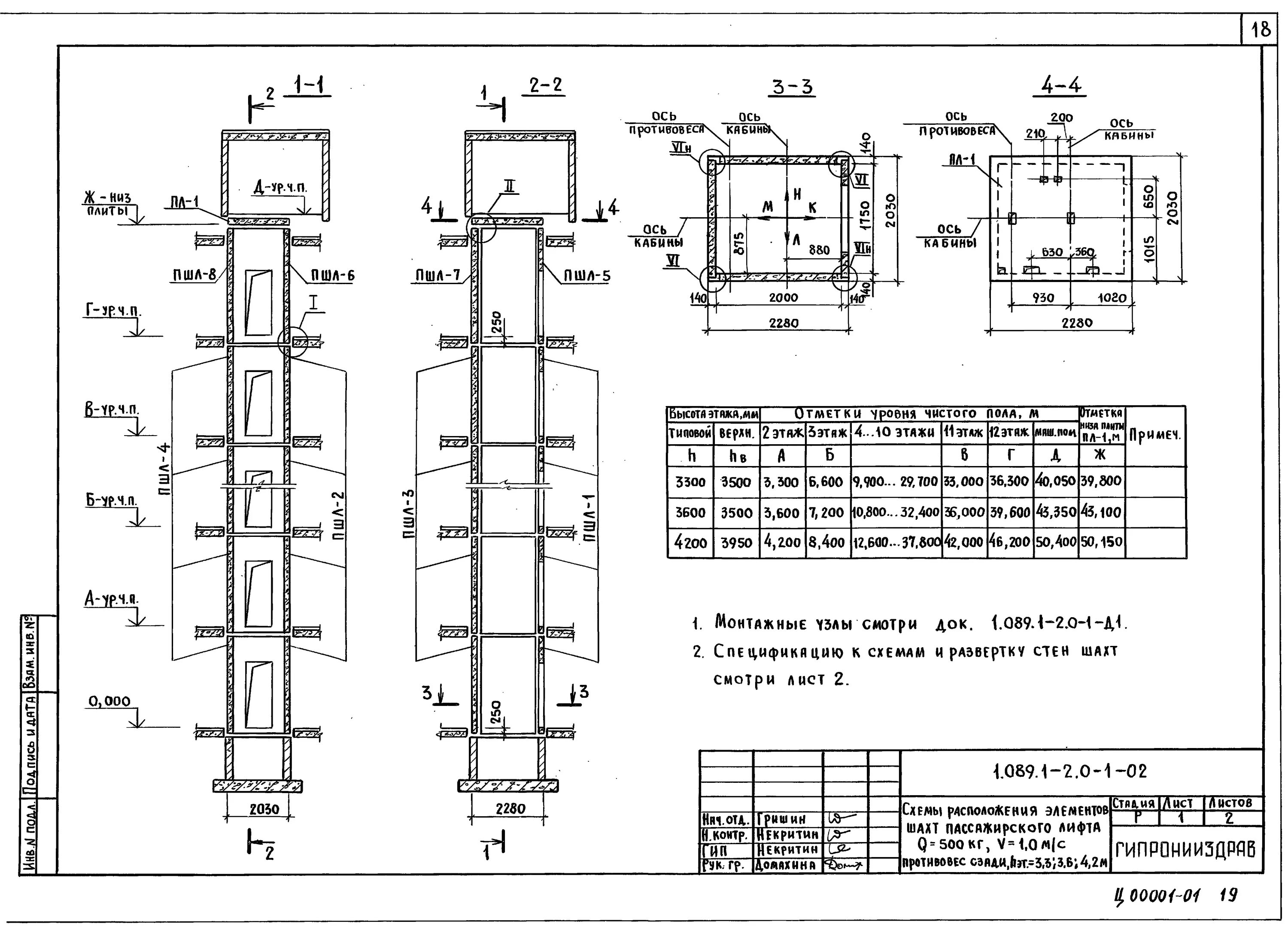
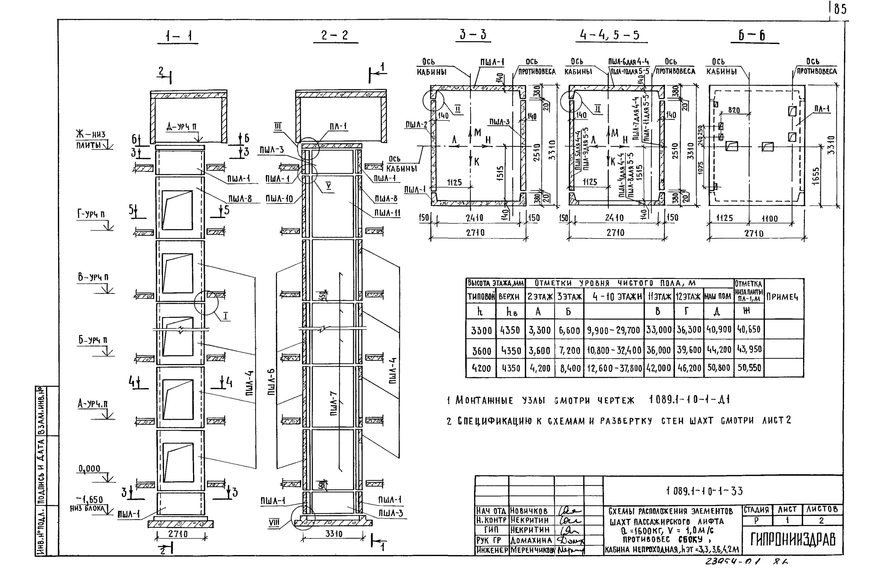
Шахта лифтовая железобетонная