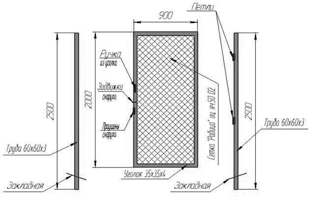
Сетка рабица размеры высота