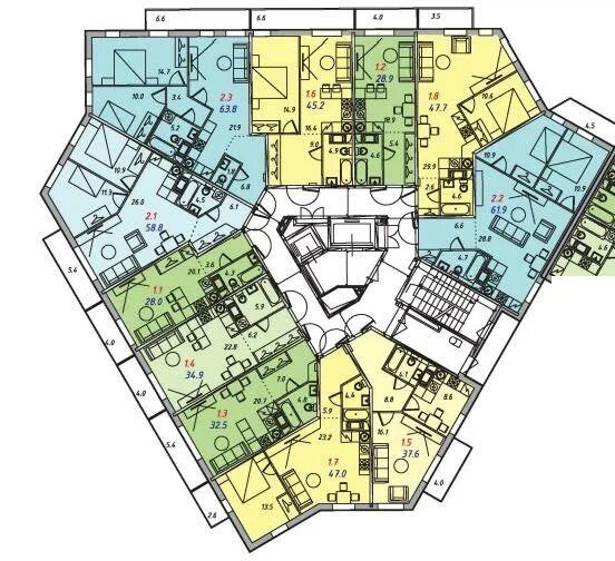
Сертолово парковый проезд 5