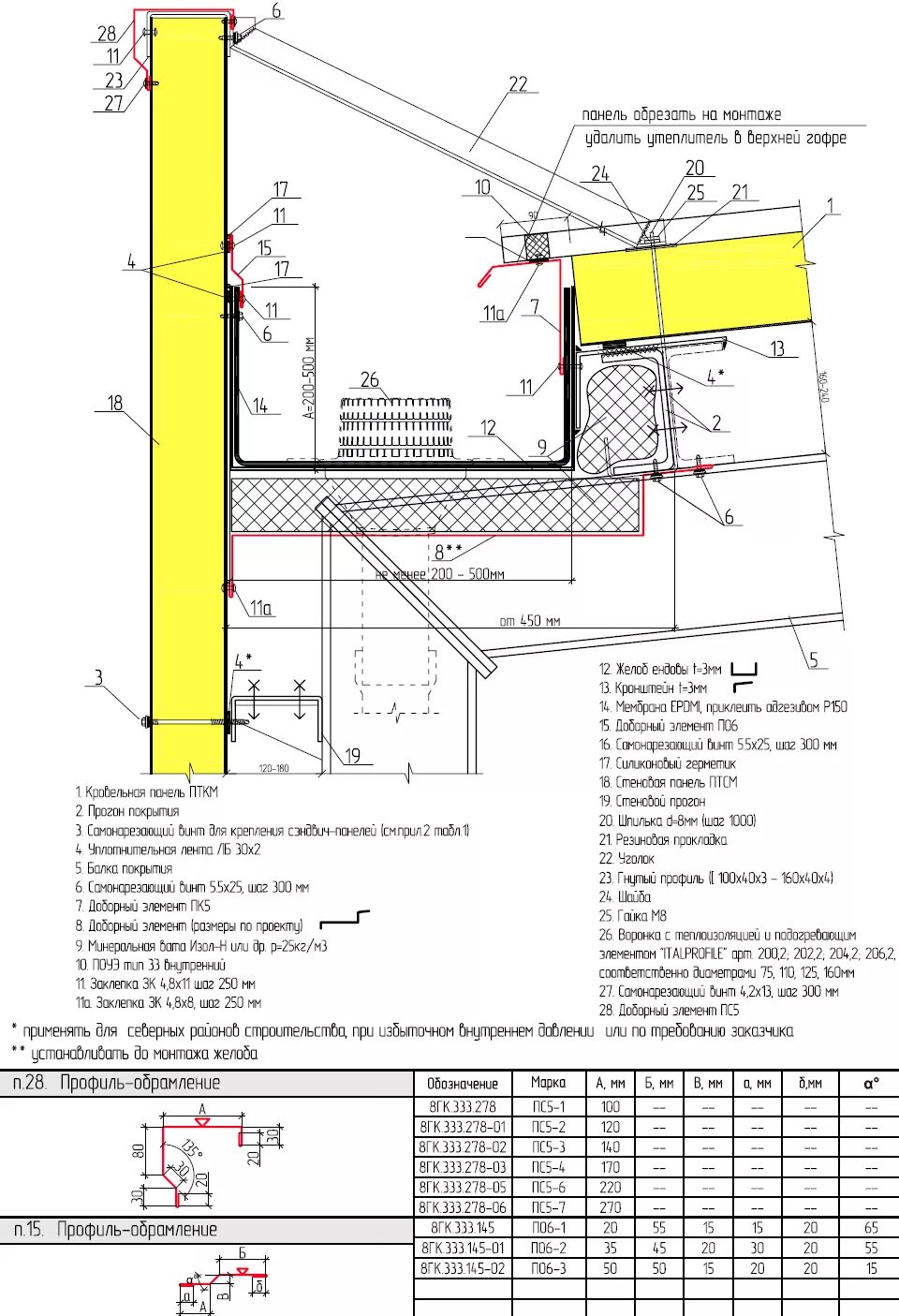
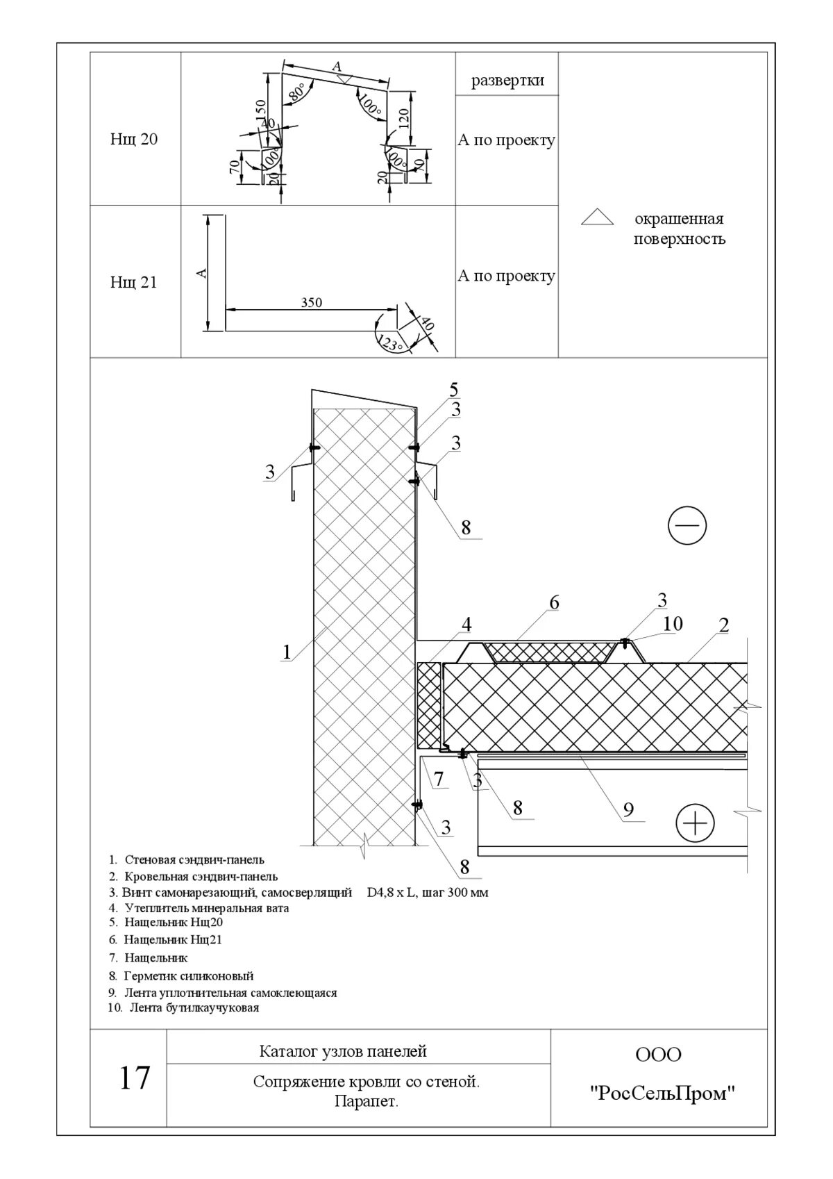
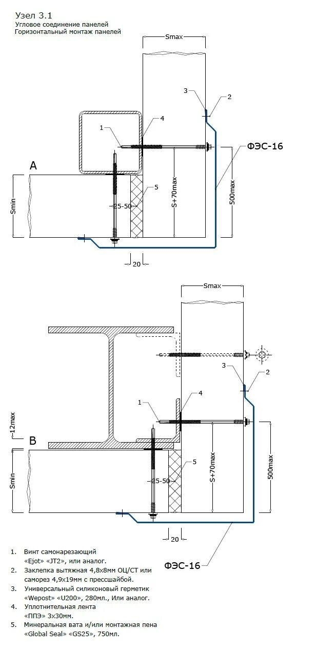
Сэндвич панели узлы двг