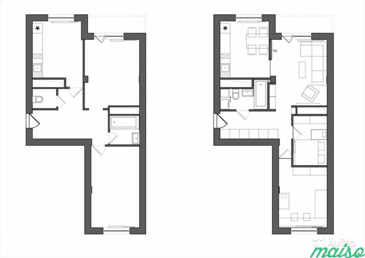
Сделан из 2 х