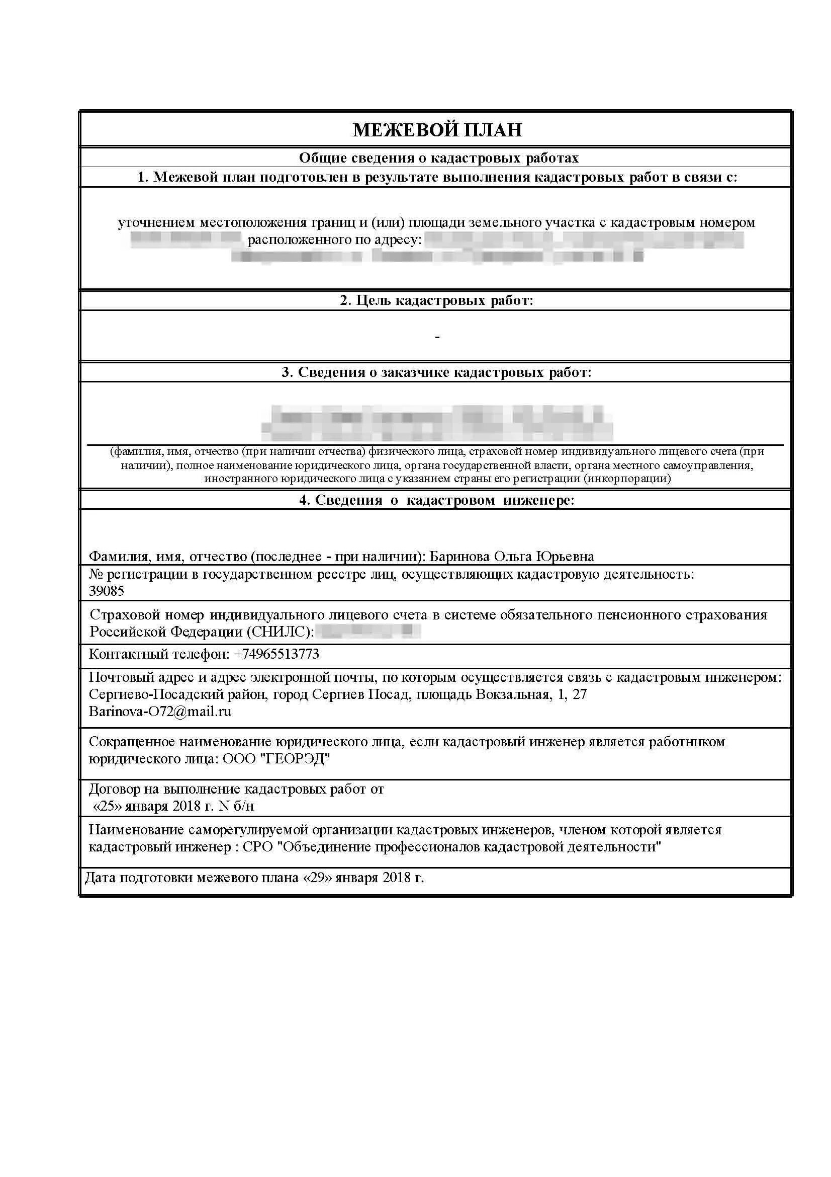
Реестре лиц осуществляющих кадастровую деятельность