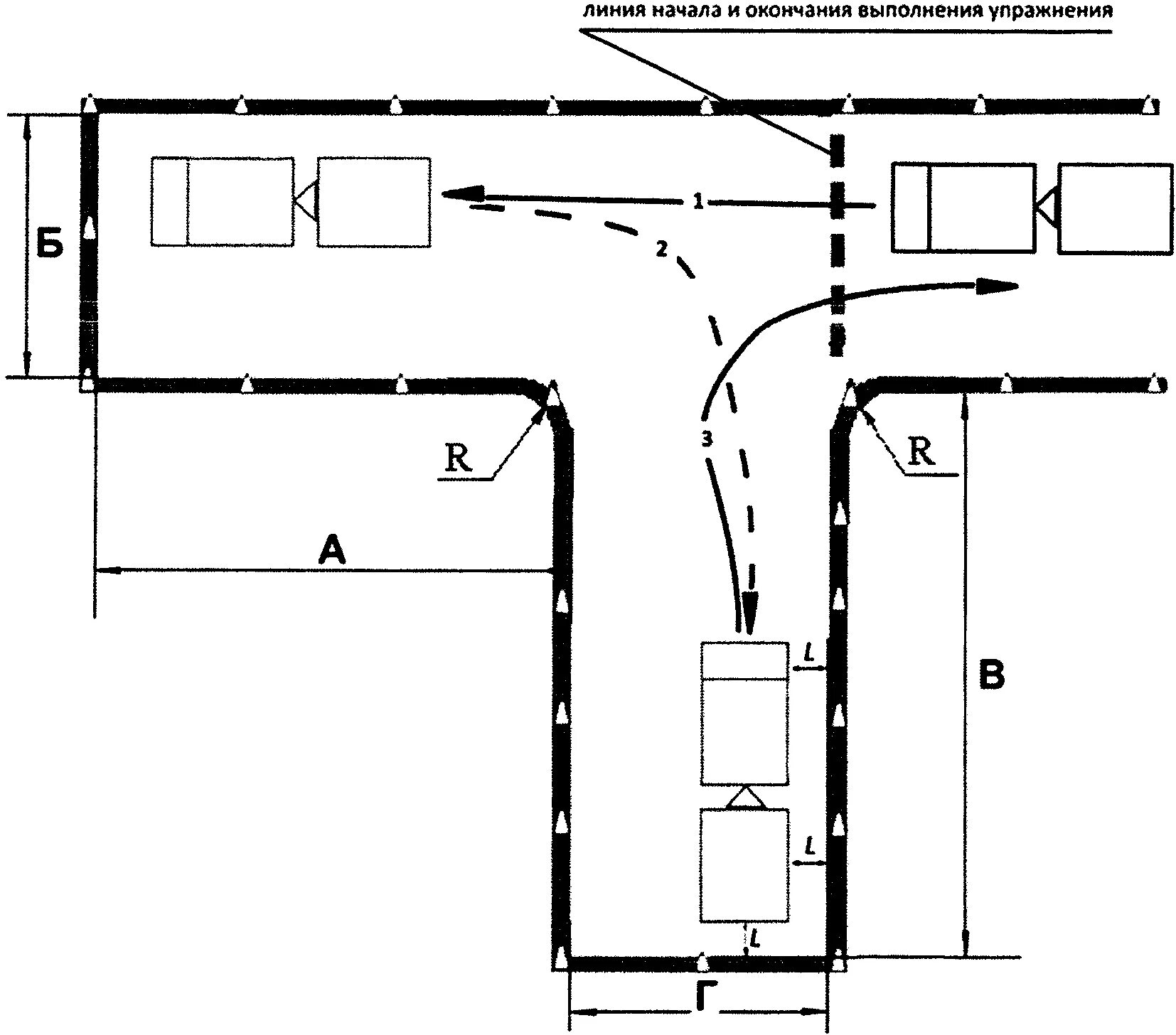
Разворотная площадка размеры для пожарной