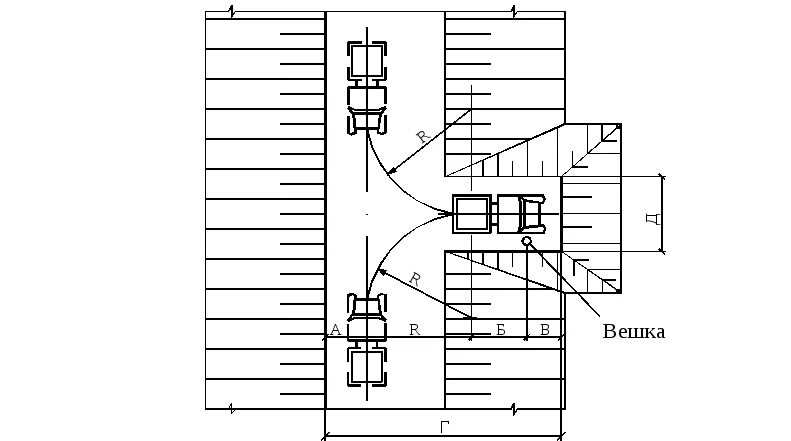
Разворотная площадка для пожарной техники