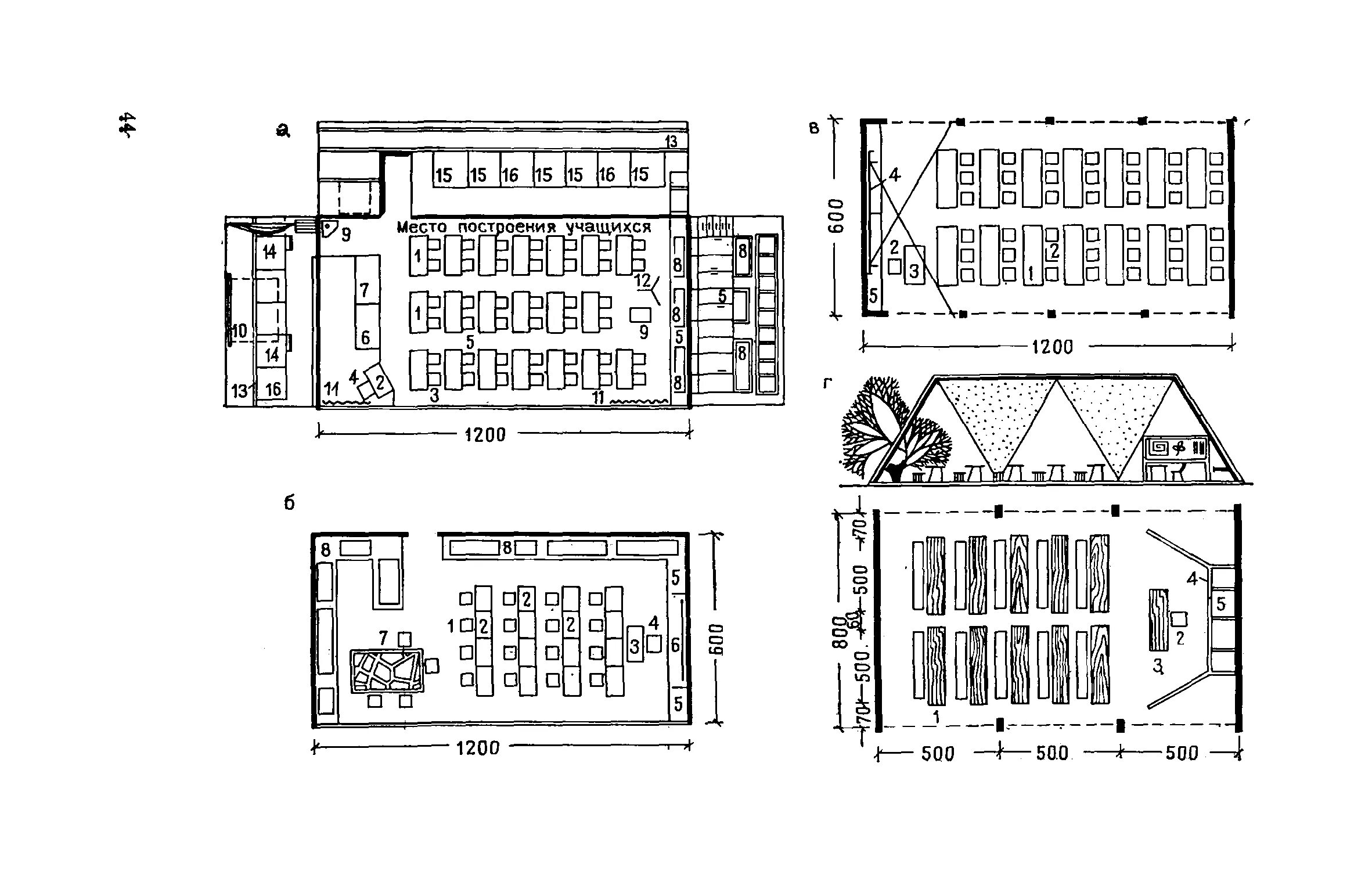
Разметка строевого плаца