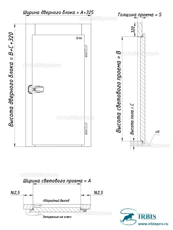
Размеры проемов под металлическую дверь