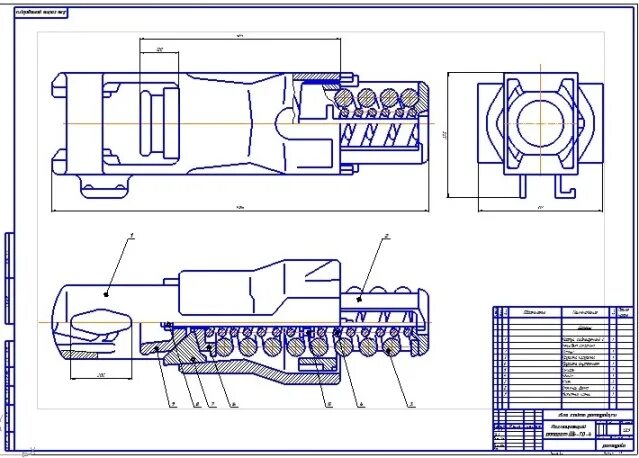
Размеры поглощающего