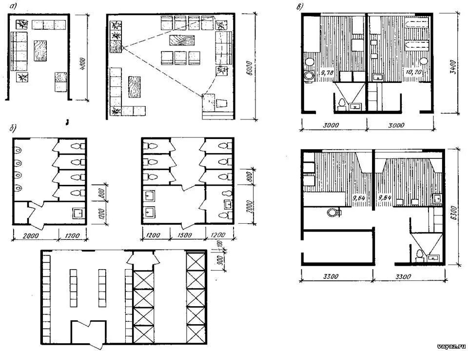
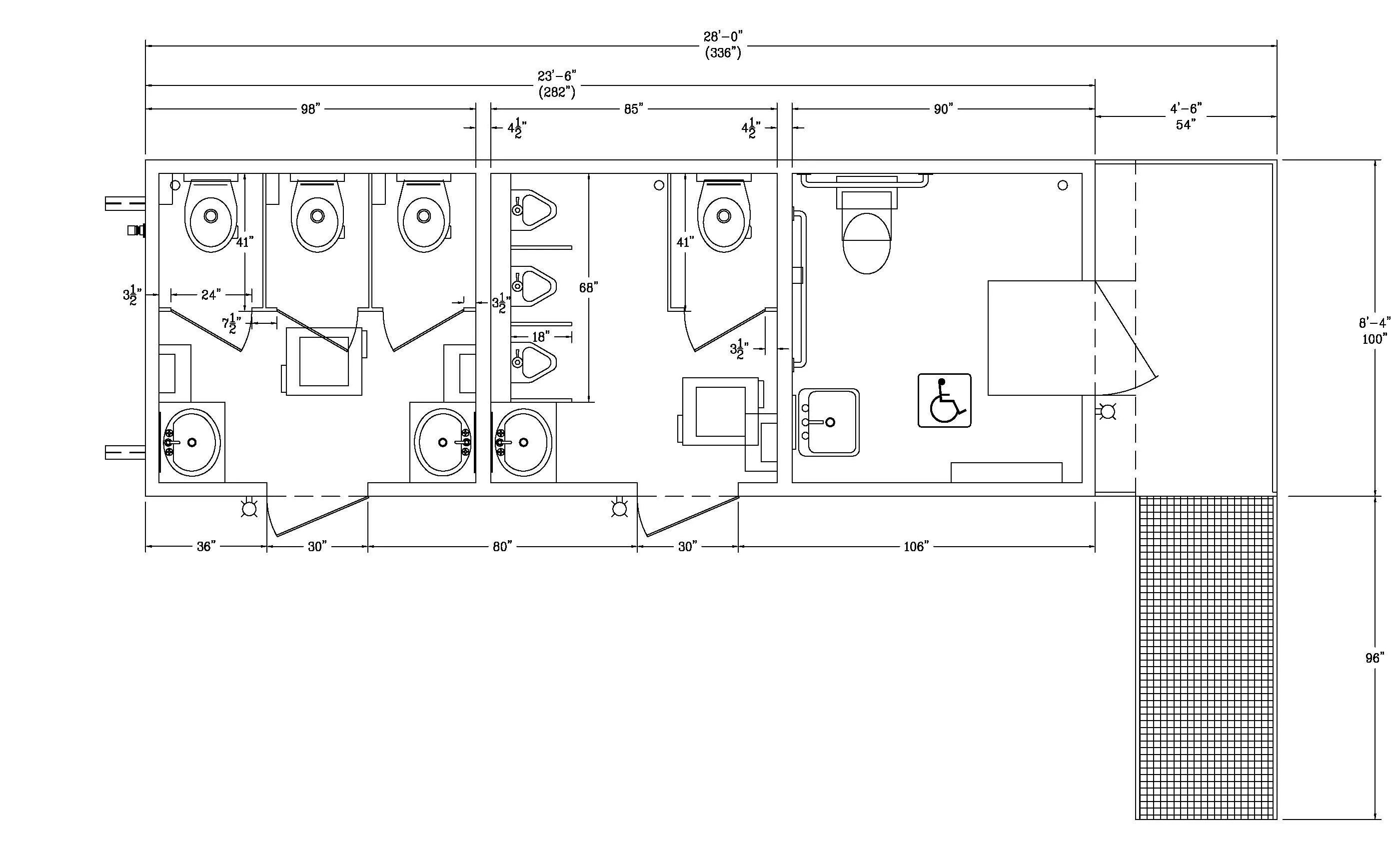
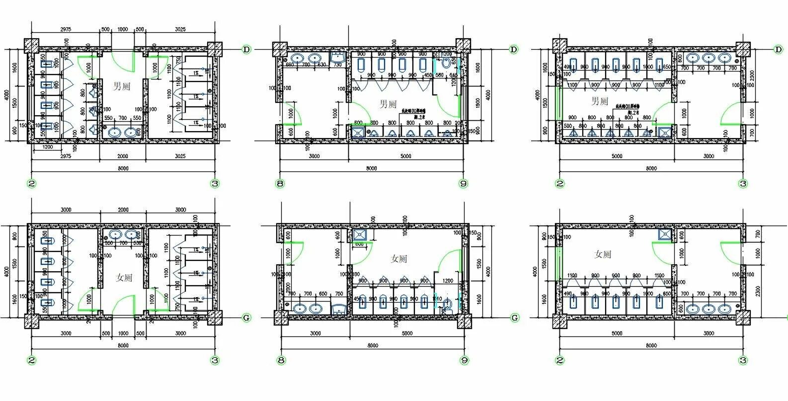
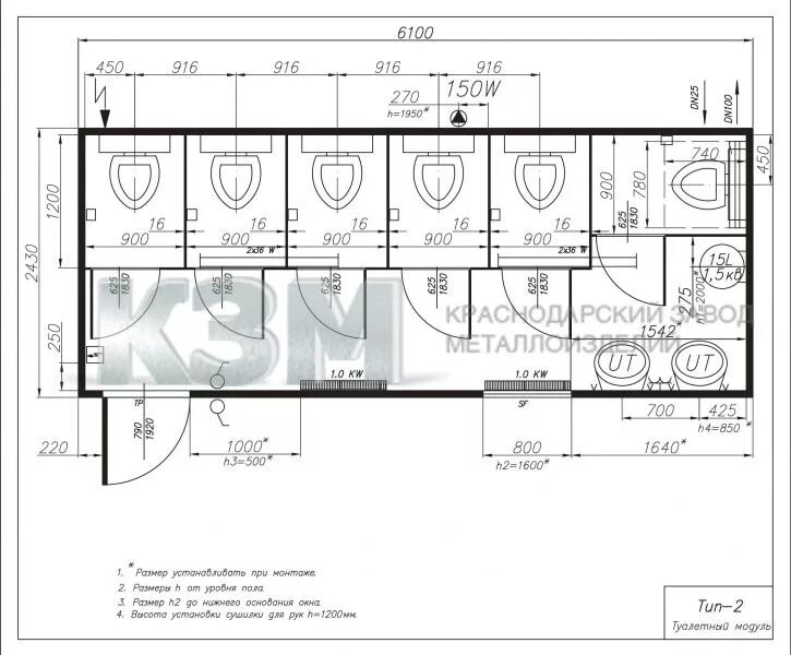
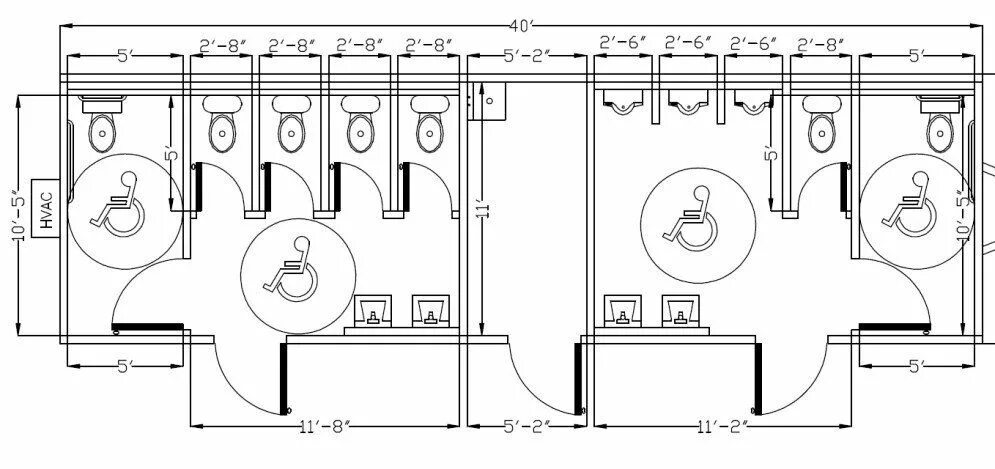
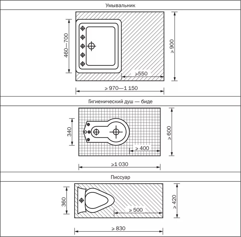
Размеры общественного санузла