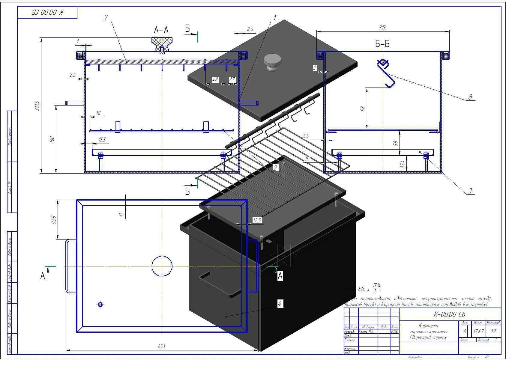
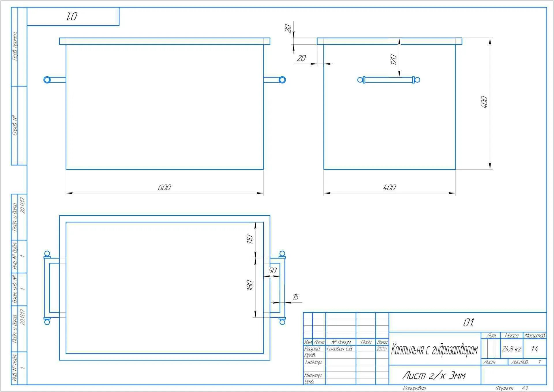
Размеры коптильни для горячего