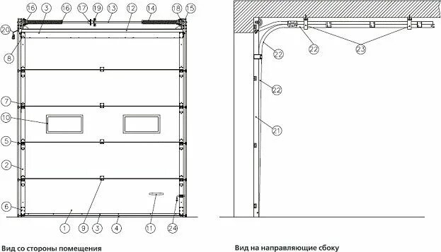
Размеры калитки секционных ворот