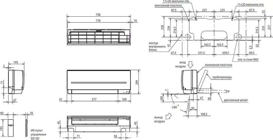
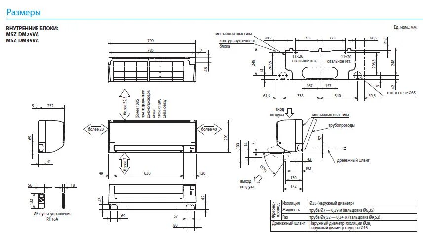
Размер внутреннего блока сплит