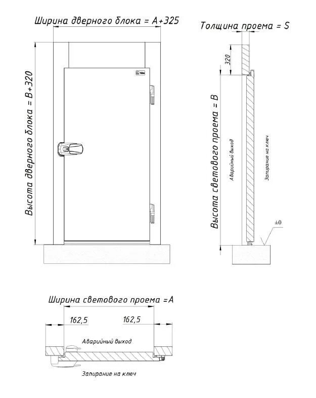
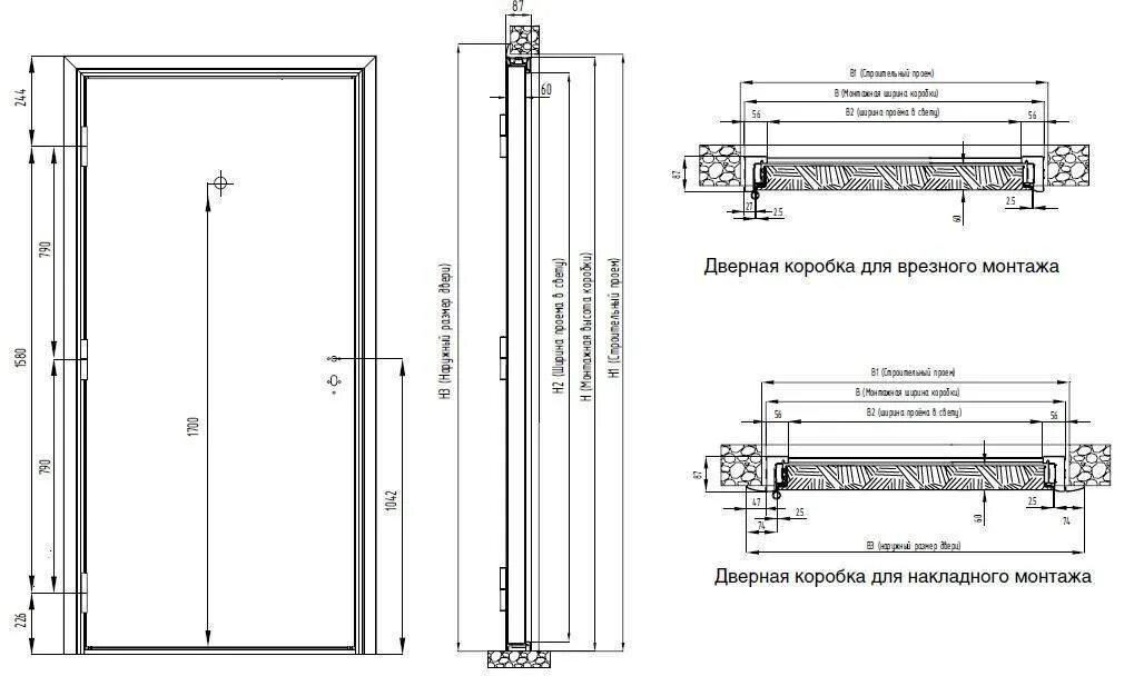
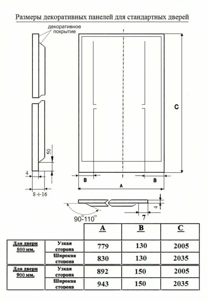
Размер входных дверей с коробкой стандарт металлических