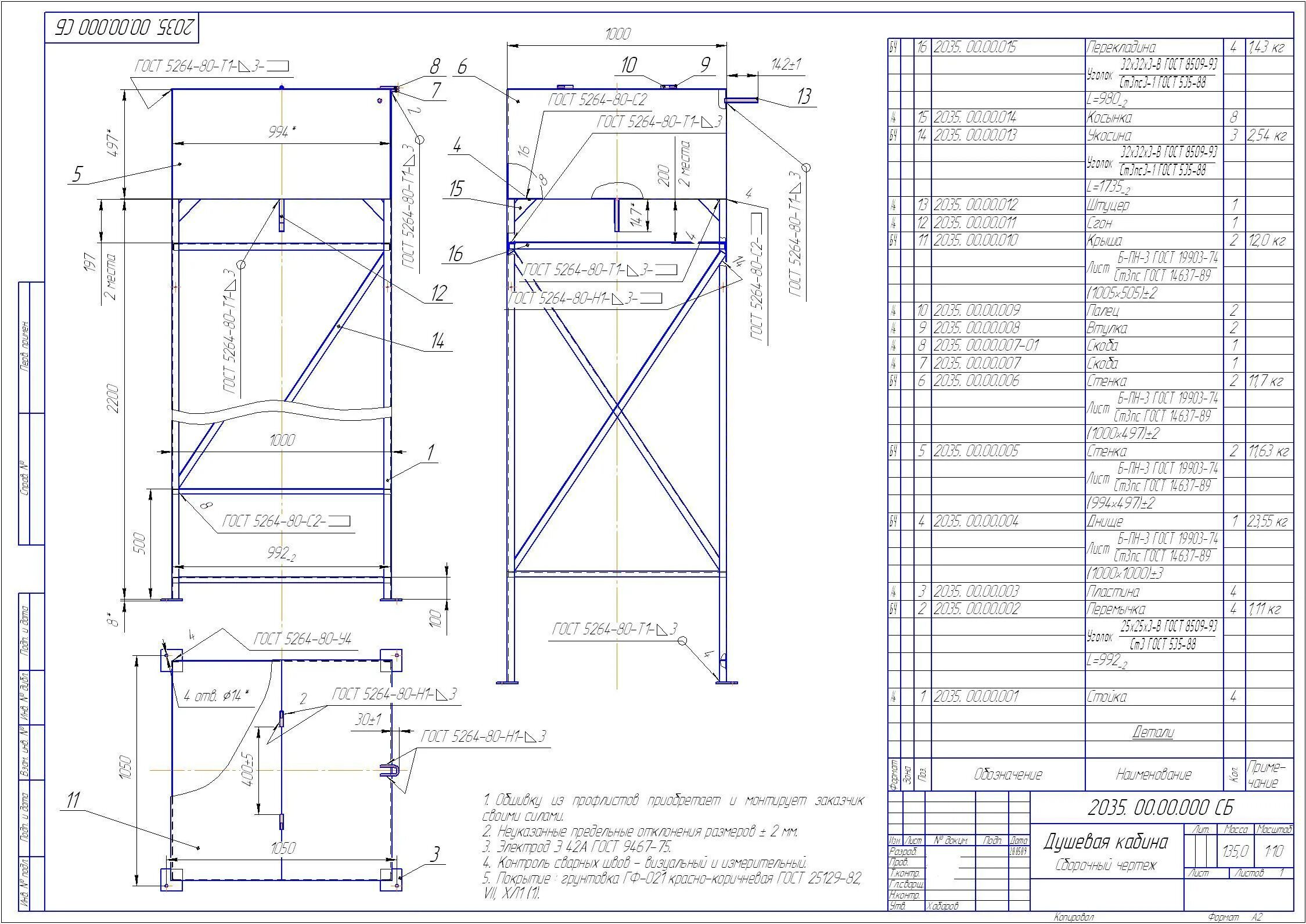
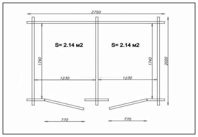
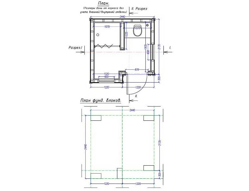
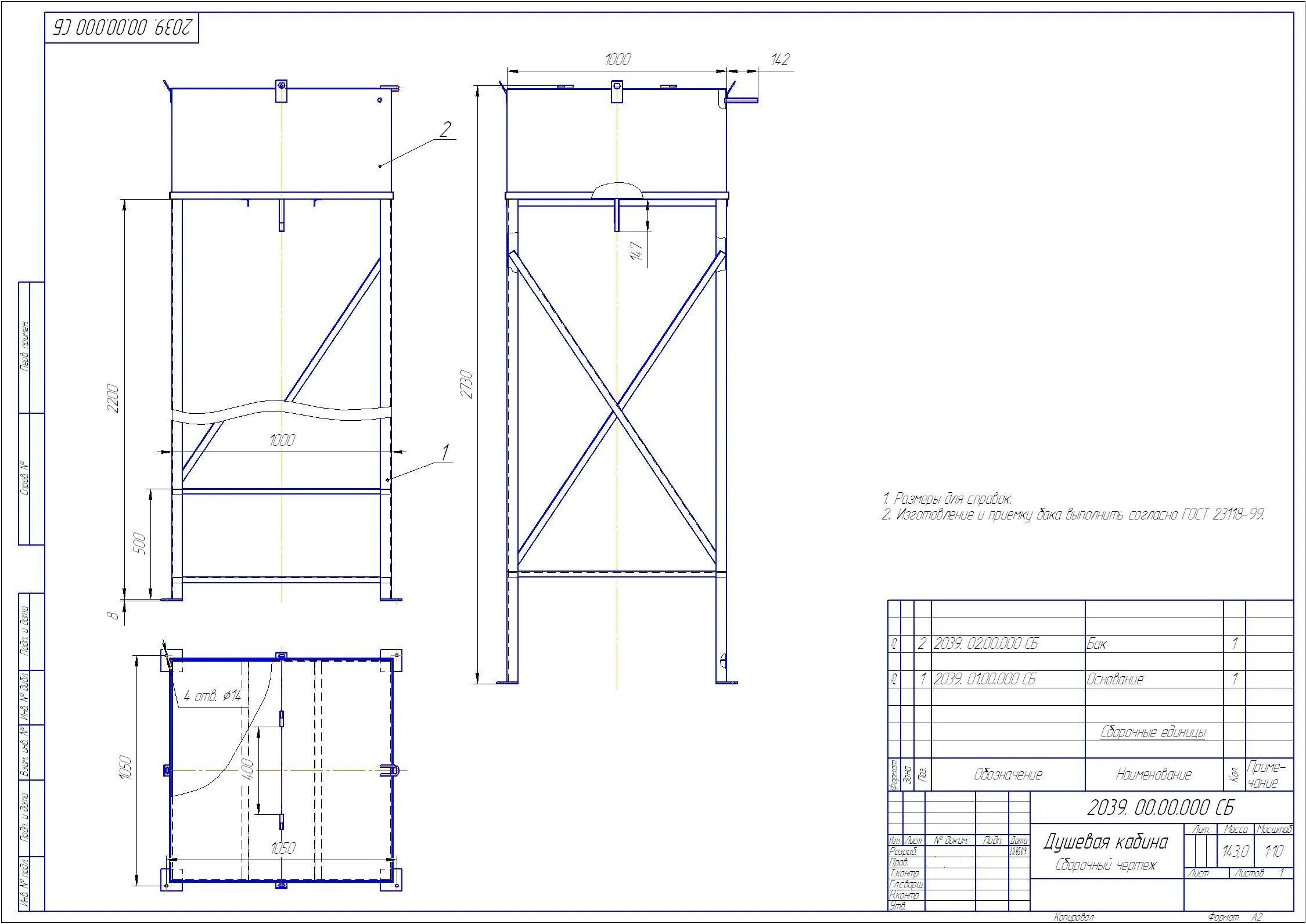
Размер дачного туалета из профильной трубы