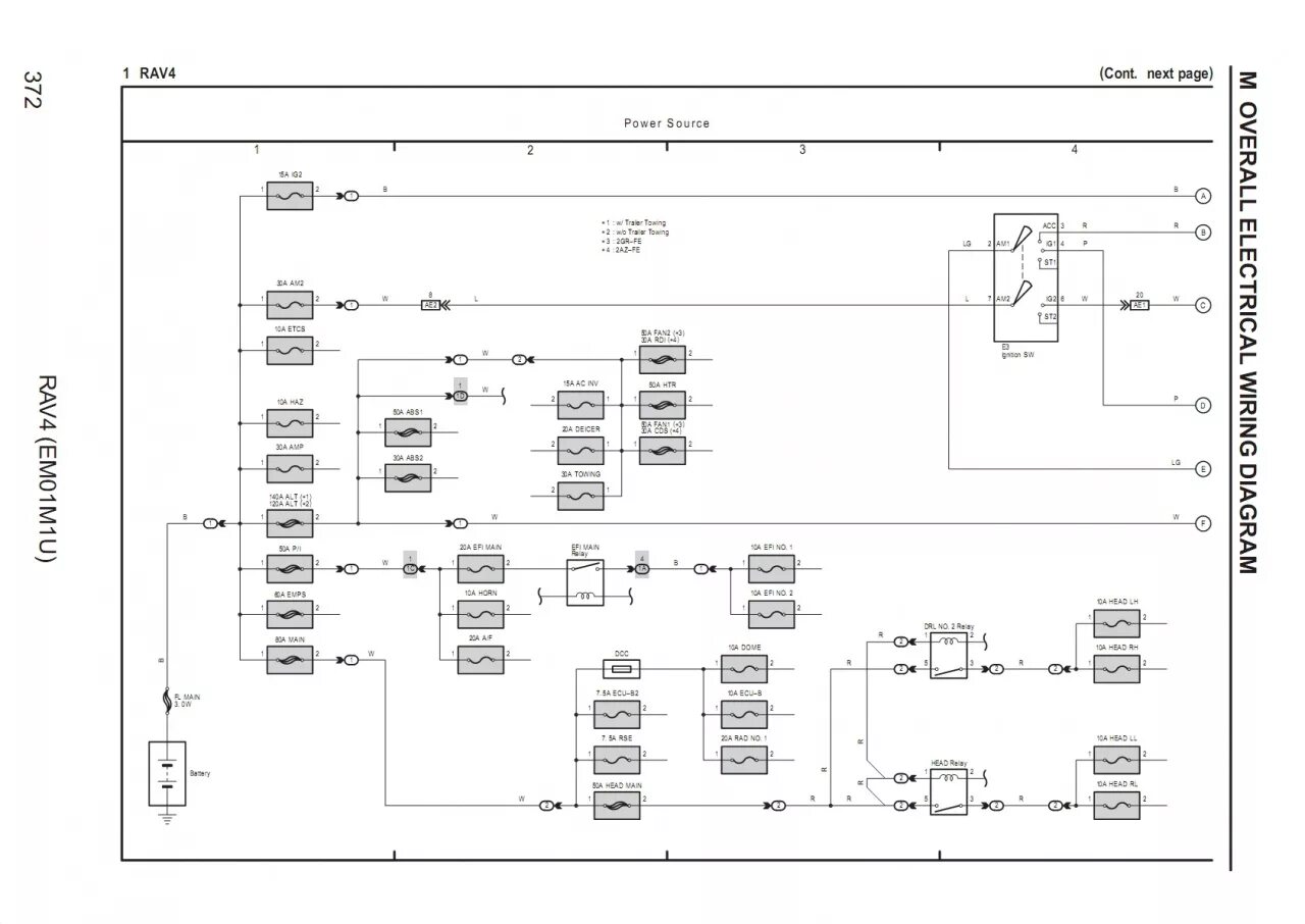
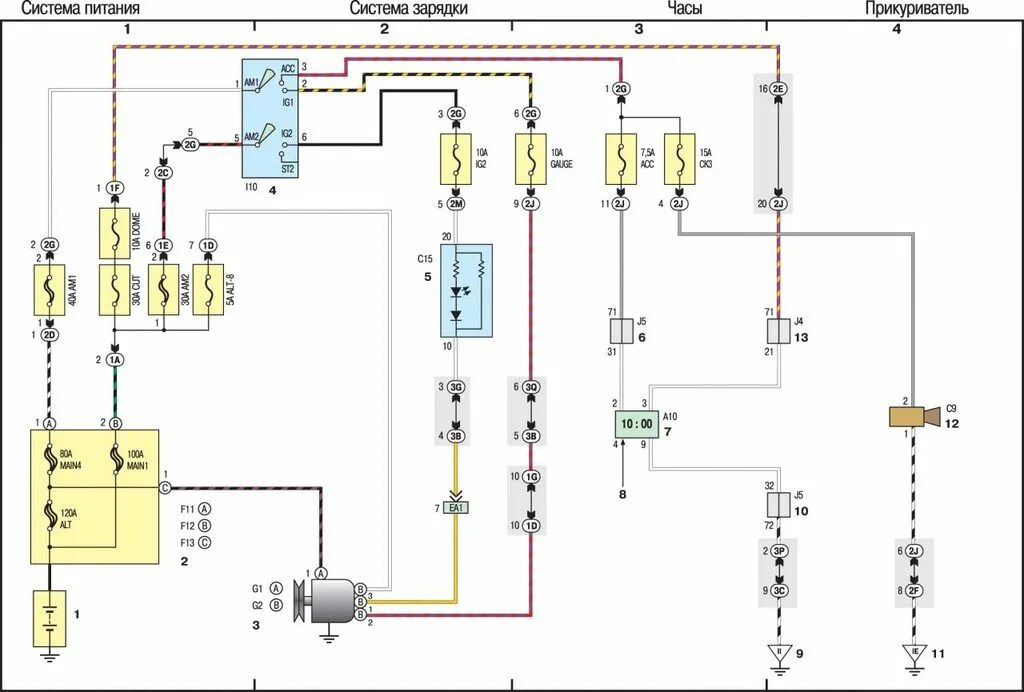
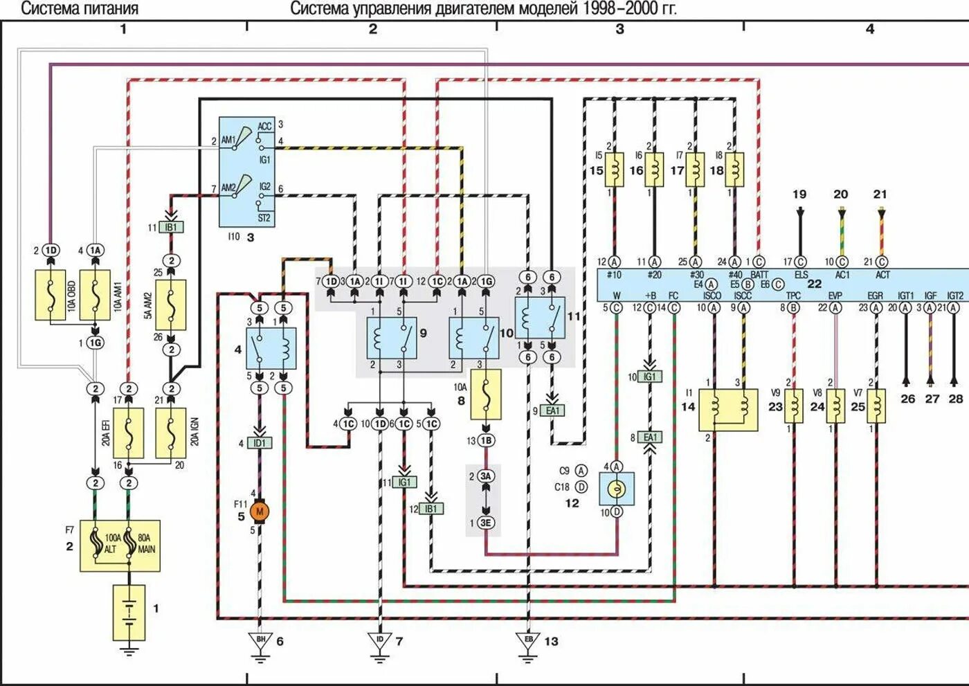
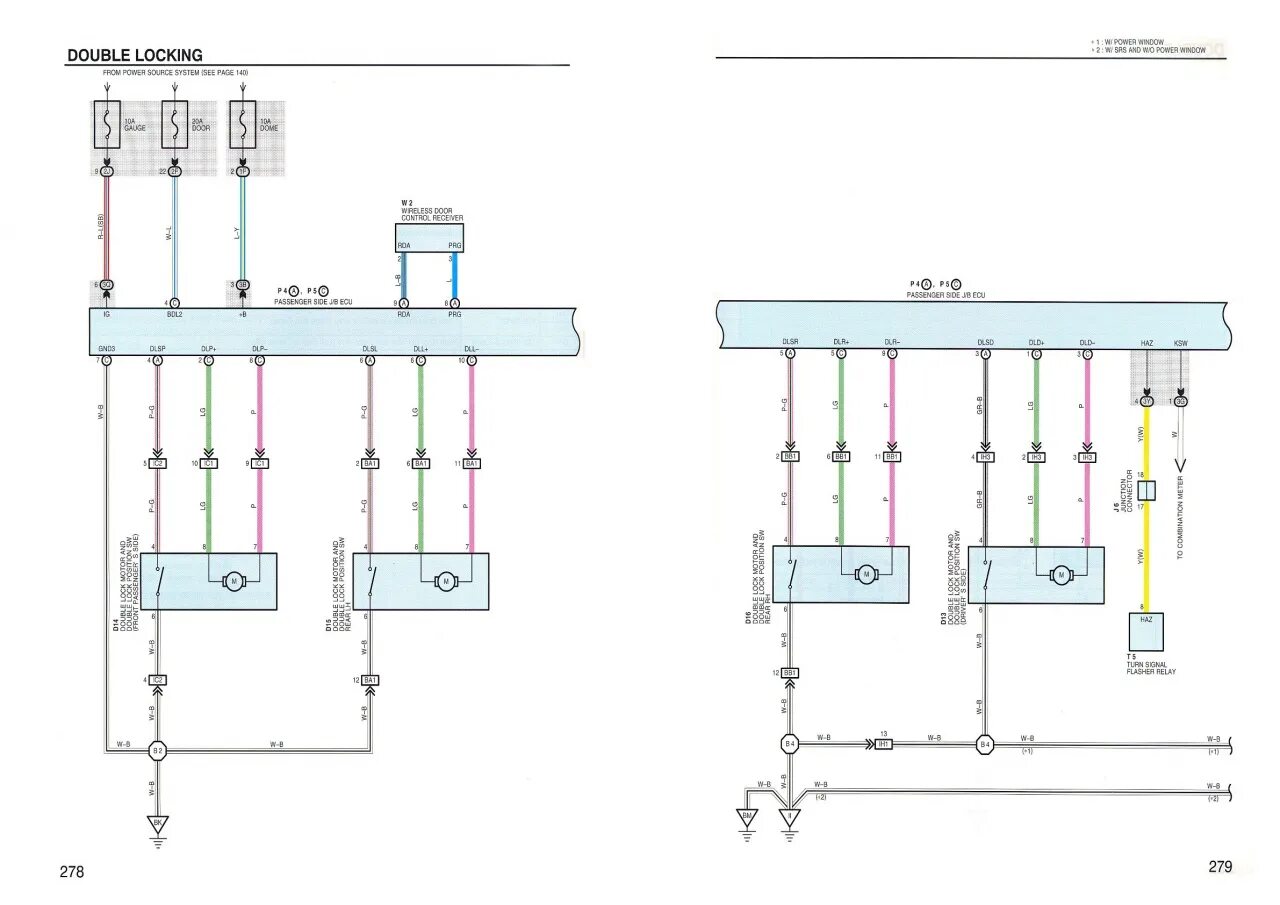
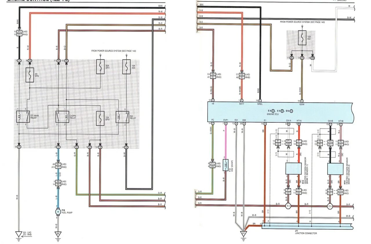
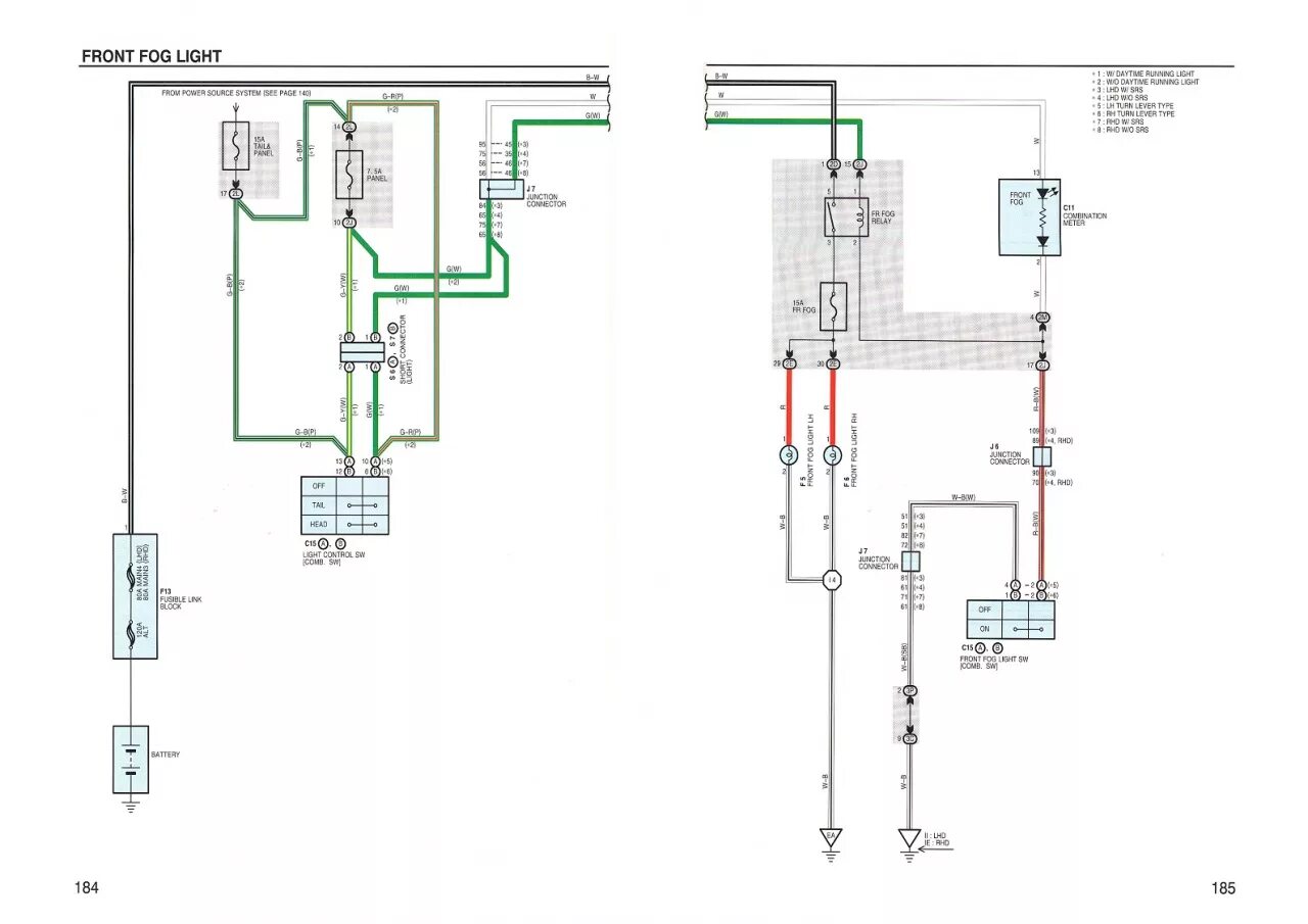
Рав 4 1 схема