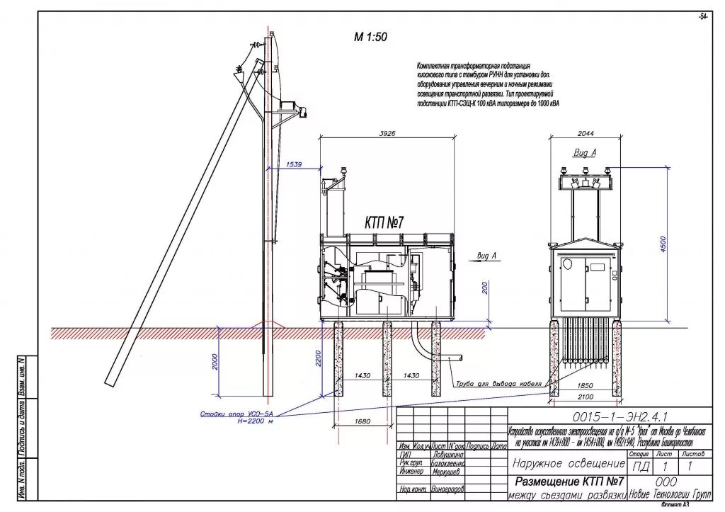
Расстояние от трансформаторной подстанции до здания