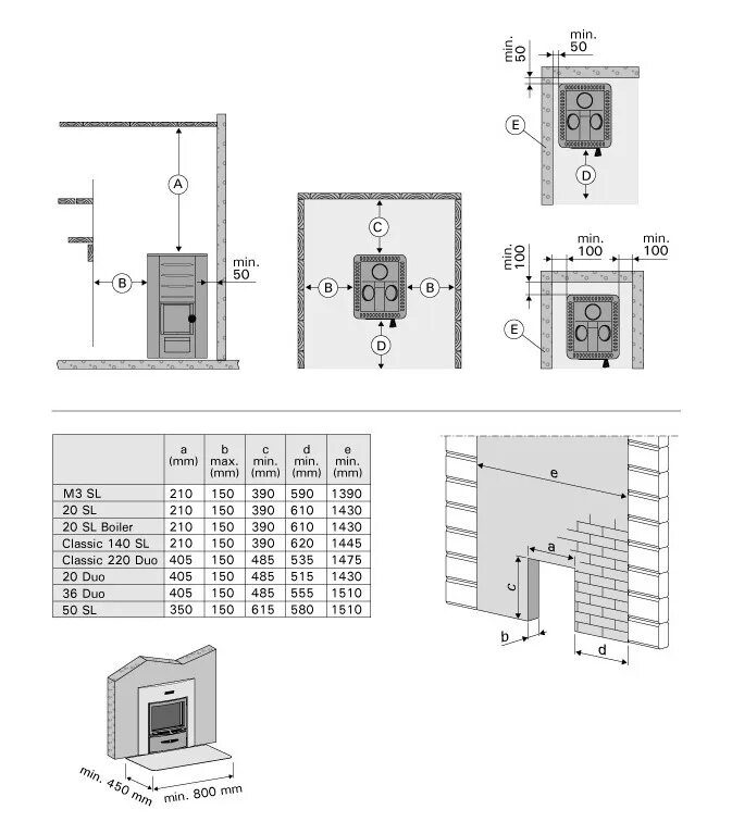
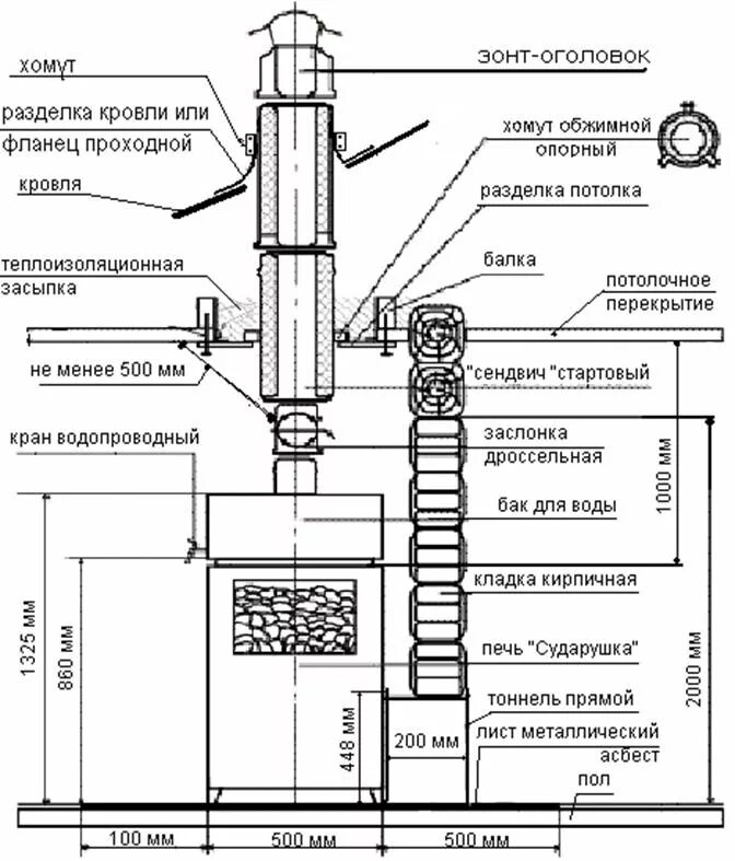
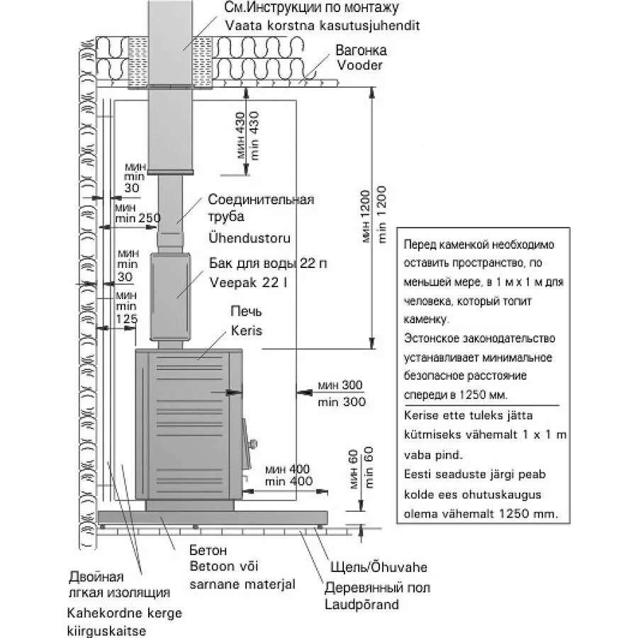
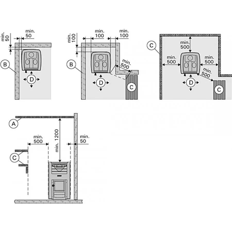
Расстояние от печи до деревянной стены