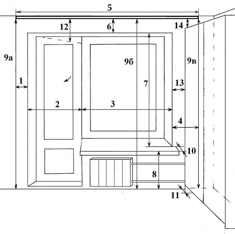
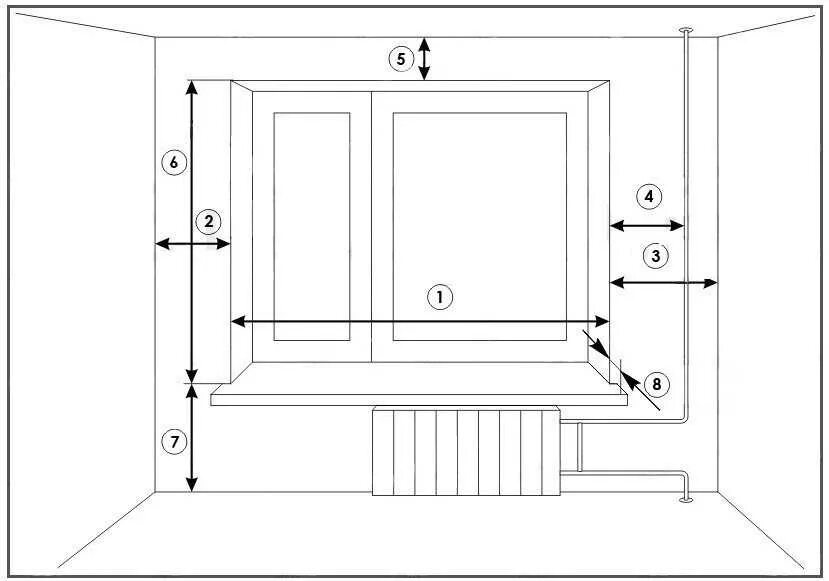
Расстояние между окном и стены