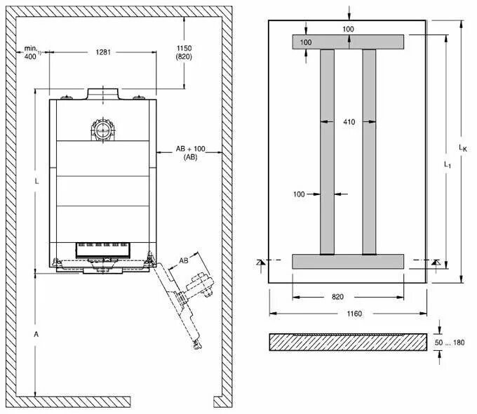
Расстояние между фронтами котлов