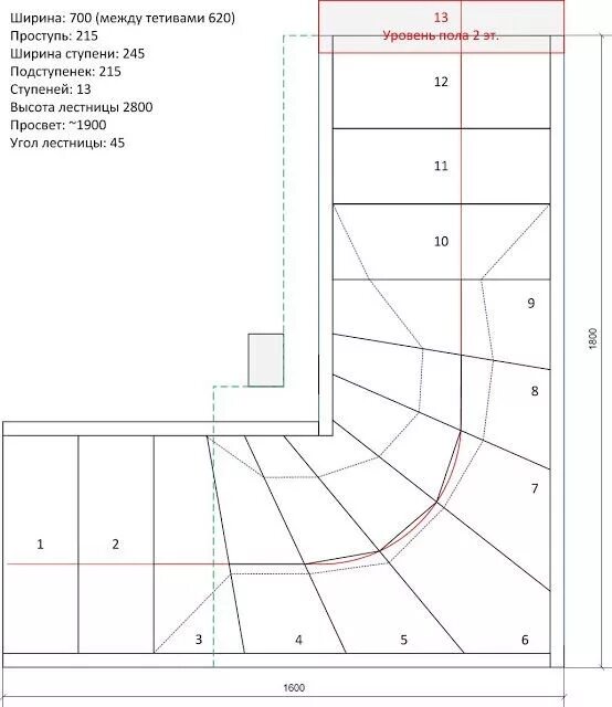
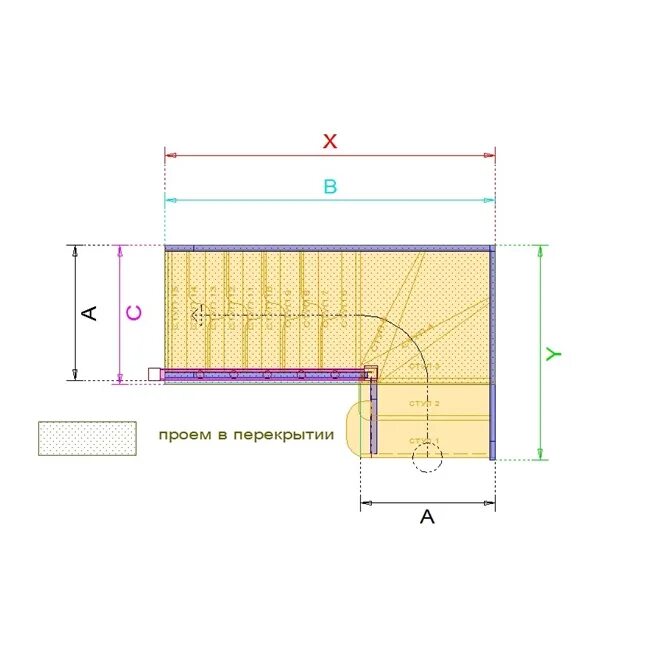
Рассчитать лестницу с забежными ступенями на 90