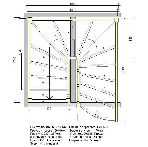
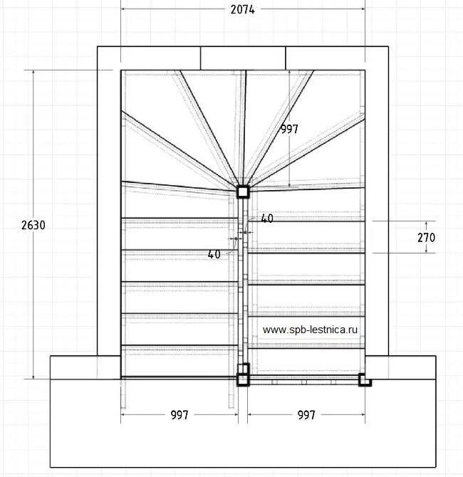
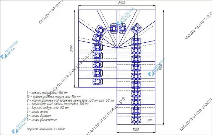
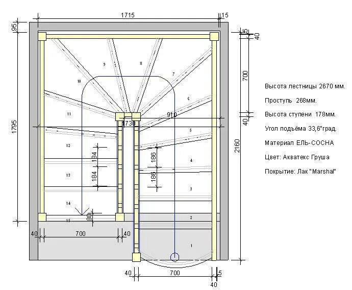
Рассчитать лестницу с забежными ступенями на 180