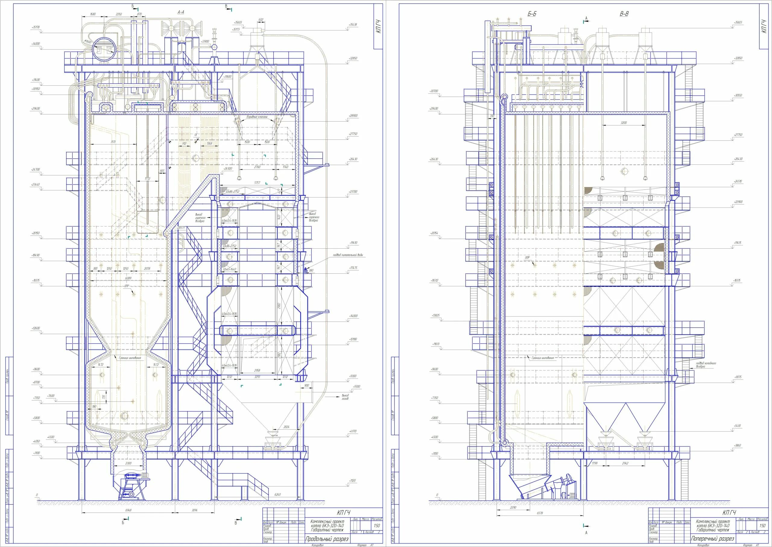
Расчеты котельного агрегата