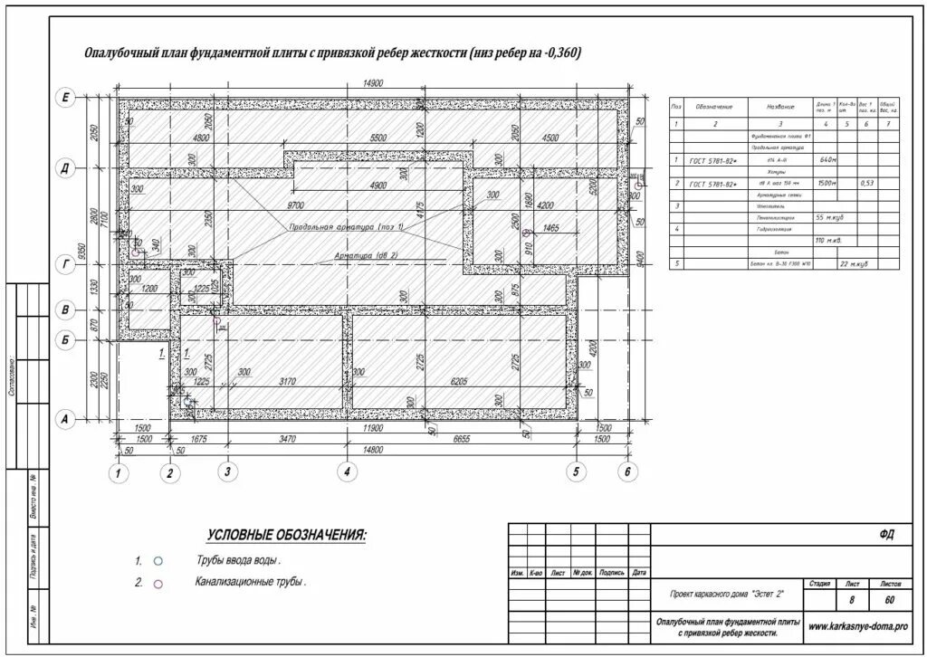
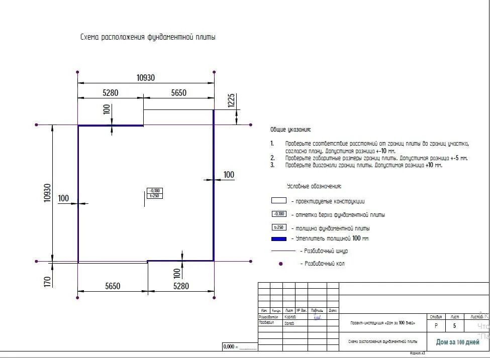
Расчет плитного фундамента