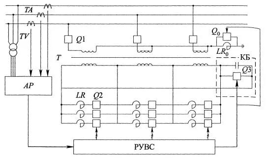
Работа шунтирующего реактора