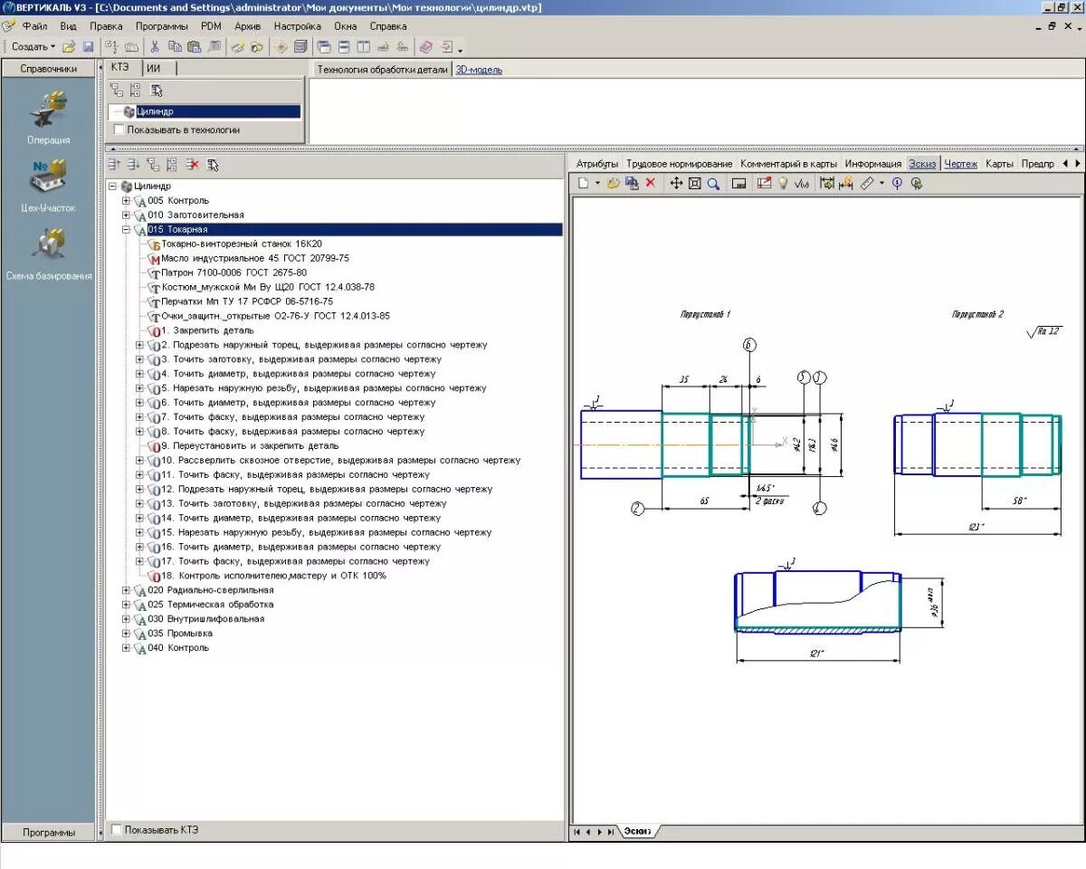
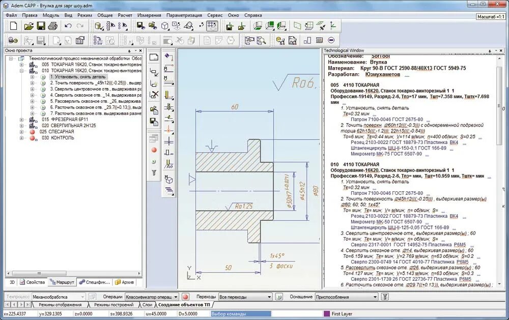
Программы для написания техпроцесса