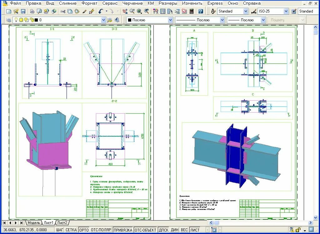
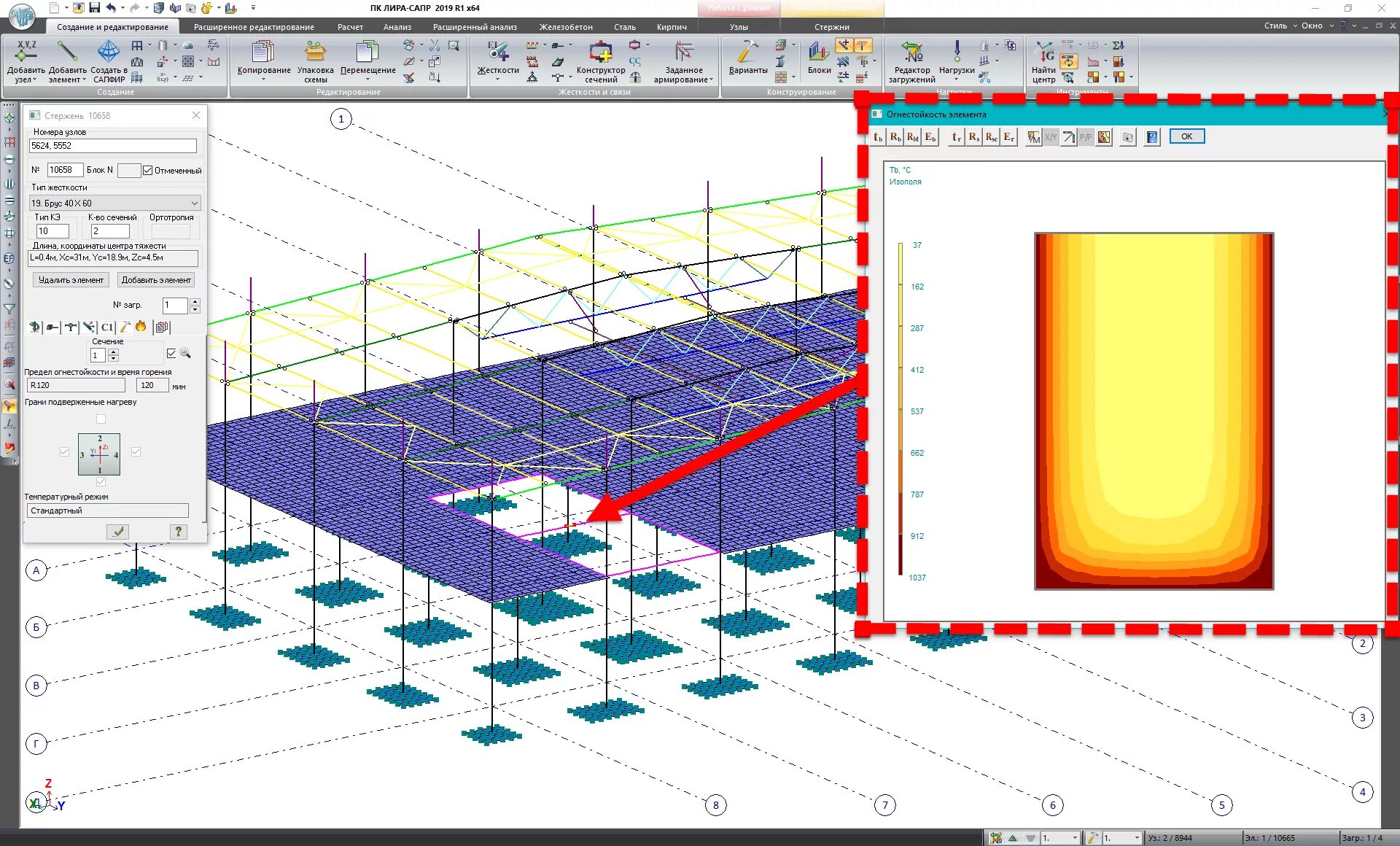
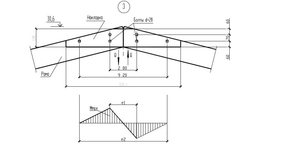
Программа расчета узлов