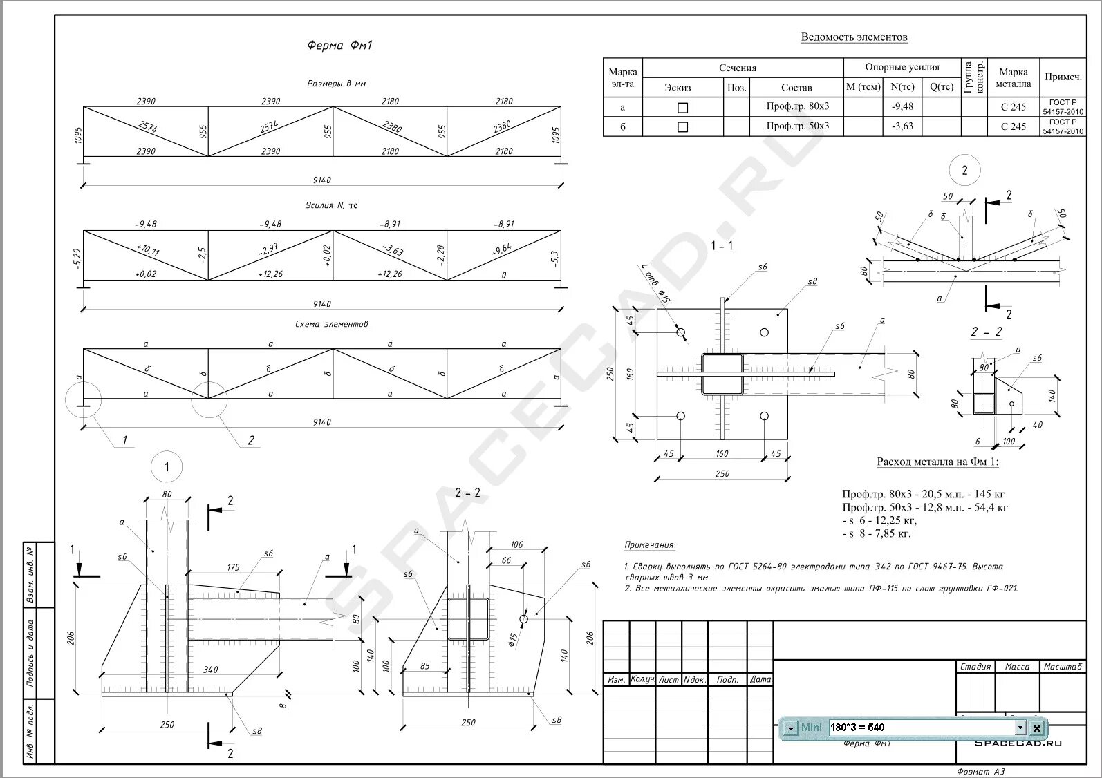
Программа расчета фермы из профильной