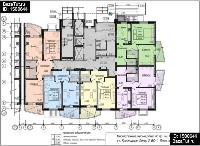
Проезд репина 1 краснодар