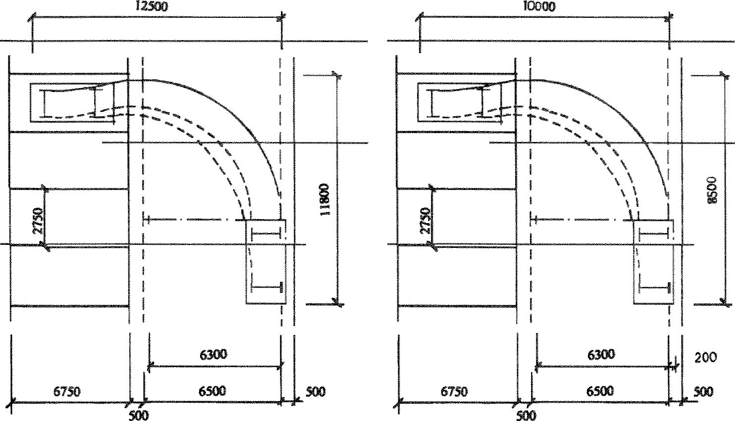
Проезд для машины высота